When Location Counts!
Perfectly positioned in first class Walkerville location, this 1974 built family home is set amongst other quality homes on large residential blocks and represents genuine value. Situated on a huge 789sqm (approximate) allotment at the end of a quiet cul-de-sac with friendly neighbours, this opportunity is not to be missed!
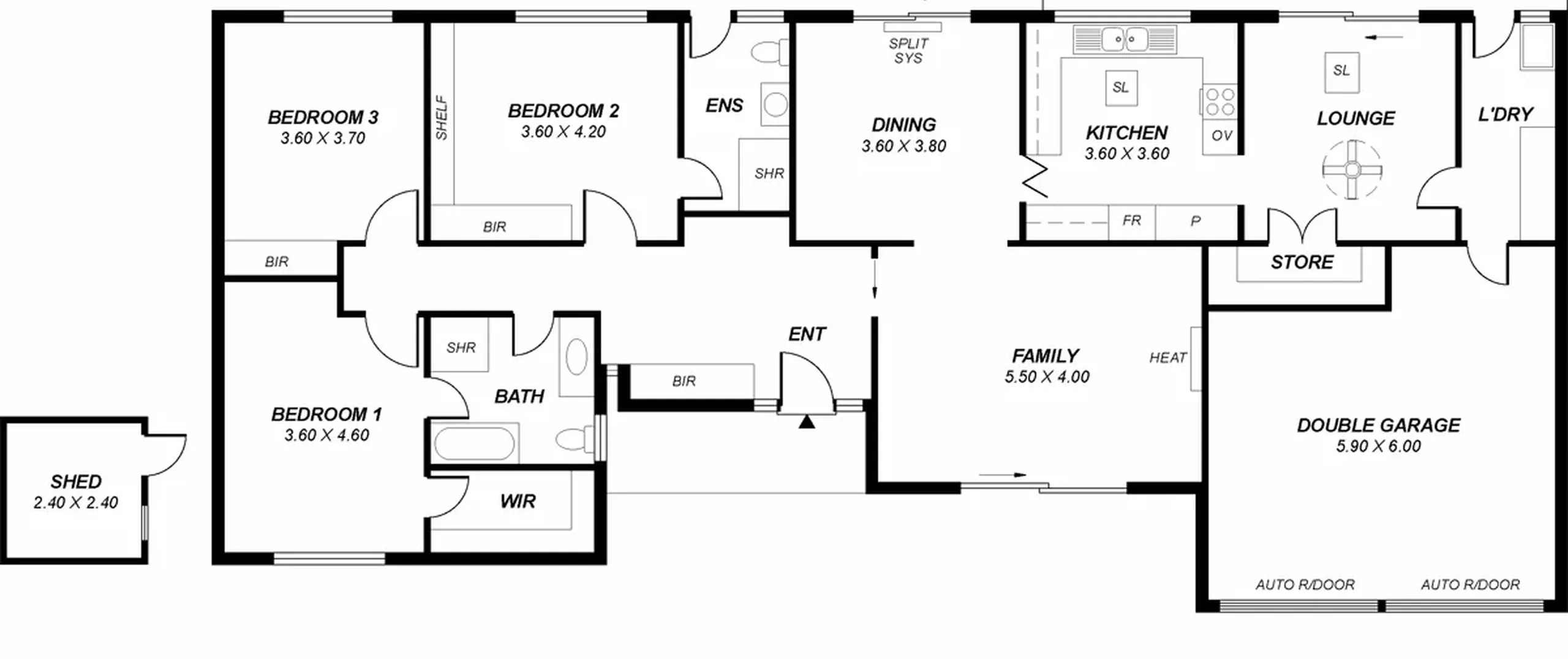
Features that make this home special:
- Spacious master bedroom with walk-in robe and direct access to two way bathroom
- Large bedroom 2 with built-in robes and ensuite with outside access
- Generous sized bedroom 3 with built-in robes
- Grand entrance with storage options
- High ceilings throughout
- Light filled family room with gas heater
- Original kitchen with gas cooktop, Simpson dishwasher, double sink and breakfast bar
- Dining room with split system air conditioner
- Lounge room with ceiling fan, skylight and walk-in pantry
- Two-way main bathroom with separate bath and shower
- Separate spacious laundry
- Huge pergola, ideal for outdoor entertaining
- Manicured rear yard with garden shed
- Gas hot water system
- Double garage with automatic roller doors and direct internal entry
Reap the rewards of this great location with only minutes to Walkerville Terrace Shopping Centre and beautiful Linear Park. Nearby to a variety of local private and public schools including St Andrew’s School, Walkerville Primary School, St Monica's Parish School and Vale Park Primary. Close to sporting grounds and public transport options including The O-Bahn. Only 3kms (approximately) to North Adelaide, Adelaide Oval Riverbank and 5kms (approximately) to the CBD. This is a prime piece of property that you do not want to miss out on!
Opportunities like this are rare - act now!
For further information please contact Warwick Haseloff on 0499 111 996, Lidija Kies on 0477 779 579 or 8269 7711 (office).
RLA 200591
The Vendor's Statement (Form 1), the Auction Contract and the Conditions of Sale will be available for perusal by members of the public -
(A) at our office located at 434 Montague Road, Modbury North for at least 3 consecutive business days immediately preceding the auction; and
(B) at the place at which the auction is to be conducted for at least 30 minutes immediately before the auction commences.
