Flexible Family Living with Exceptional Hills Outlooks
As the suburb name suggests, this home truly does offer stunning hills vistas. Elevated on the high side of the street and backing directly onto the picturesque Anstey Hill Recreation Park, this spacious residence enjoys an exceptional setting where leafy outlooks and nature walks are part of daily life. Designed with lifestyle and comfort in mind, the home’s unique layout maximises natural light, space and those breathtaking views from the living areas, kitchen and main bedroom.
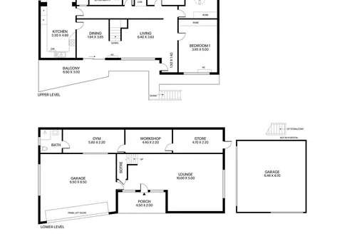
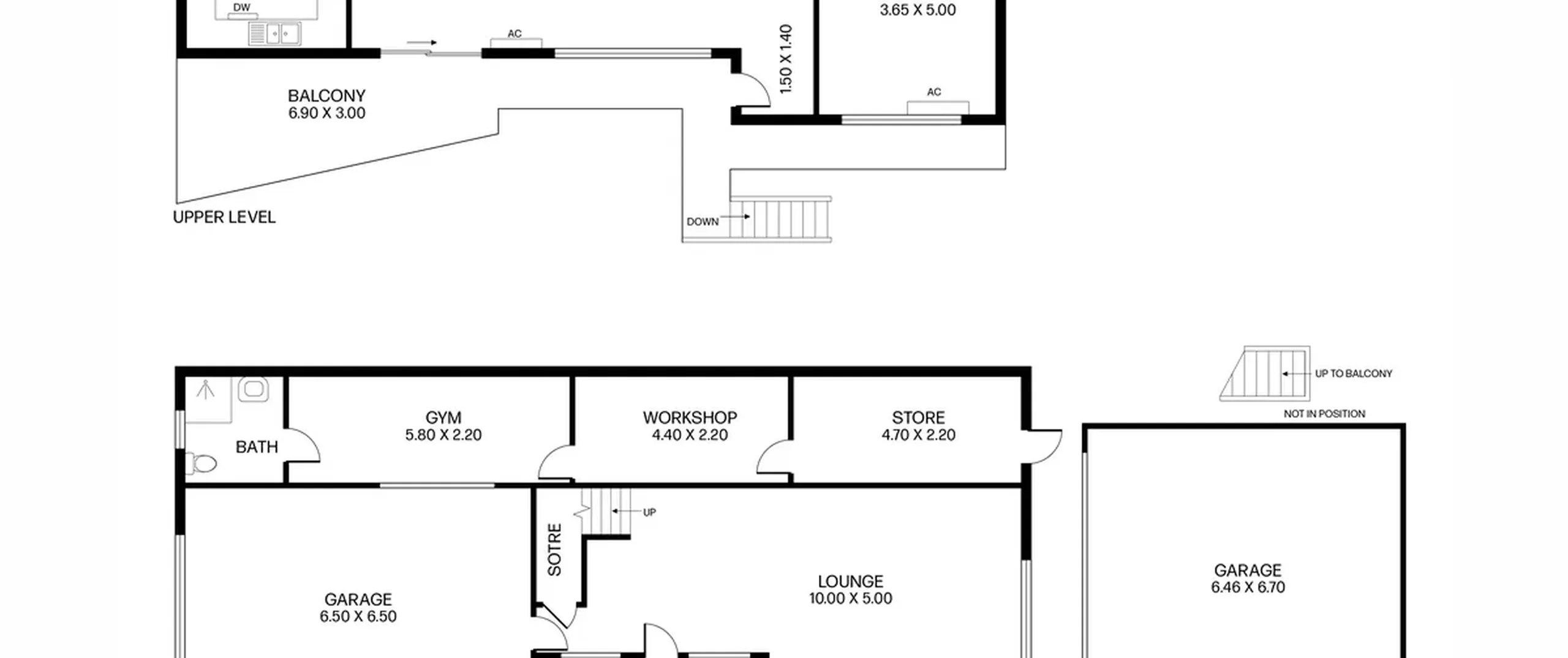
Set across two levels, the home offers multiple zones for relaxing, entertaining and family living. The upper level is the heart of the home, featuring a generous open plan living and dining area that flows onto a wide balcony, the perfect spot to take in the fresh hills air or watch the sun set over the treetops. The well-appointed kitchen offers plenty of bench and storage space, making it both functional and inviting. The meals area feels instantly welcoming, with a bench seat looking out to Anstey Hill Reserve, an ideal place to enjoy breakfast and watch kangaroos in the distance.
Three bedrooms provide ample accommodation, with the master suite capturing the best of the views and generous proportions. The lower level adds incredible flexibility, featuring additional areas ideal for a rumpus room, home gym, workshop or office, as well as extensive storage and a double garage with internal access.
Features that make this home special:
Upper Level:
- Elevated position on the high side of the street with hills vistas and leafy outlook
- Spacious open-plan living and dining area with sliding door balcony access
- Kitchen with ample bench and storage space, oven, electric cooktop and stainless steel dishwasher
- Sitting area adjacent kitchen to take in the views or read a book
- Great size balcony ideal for entertaining with a view
- Main bedroom with built-in robe, split system air-conditioning and views to the hills
- Two additional bedrooms, bedroom 2 complete with a built-in robe, split system air-conditioning and a ceiling fan
- Main bathroom with bath and separate shower
- Separate toilet for convenience
- Convenient laundry with direct outdoor access
Lower Level:
- Versatile living spaces ideal for a rumpus, home gym, office or workshop
- Additional storage areas and utility spaces
- Bathroom with shower
- Double brick construction
- Double garage with panel lift door and internal access
- Additional double garage
- Further designated off-street parking at the base of the driveway
Vista is a highly sought-after foothills suburb, offering a peaceful, family-friendly lifestyle with stunning natural surroundings. Just minutes from St Agnes Shopping Centre, enjoy convenient access to everyday essentials, while a variety of reputable schools, including St Agnes Primary School, cater to growing families. Commuters benefit from easy access to the Adelaide CBD via the O-Bahn, and for retail, dining, and entertainment, Tea Tree Plaza is also nearby.
All information contained herewith, including but not limited to the general property description, price and the address, is provided to Boffo Real Estate by third parties. We have obtained this information from sources we believe to be reliable; however, we have not verified and do not guarantee its accuracy. The information contained should not be relied upon and you should make your own enquiries and seek advice in respect of this property or any property on this website.
Looking to purchase this property as an investment? Speak to our Property Management team to see how we can assist.
RLA 313174
Enquire about this property
