Room For All!
A rare opportunity is on offer to secure this well maintained family home in the popular suburb of Vista. This family home directly opposite a fantastic park, will appeal to growing families that need their own space, first home buyers and young couples. Situated on a 723sqm (approximate) allotment this home is perfect to move in straight away and enjoy, with the option to upgrade to your own taste later.
Feature that make this home special:
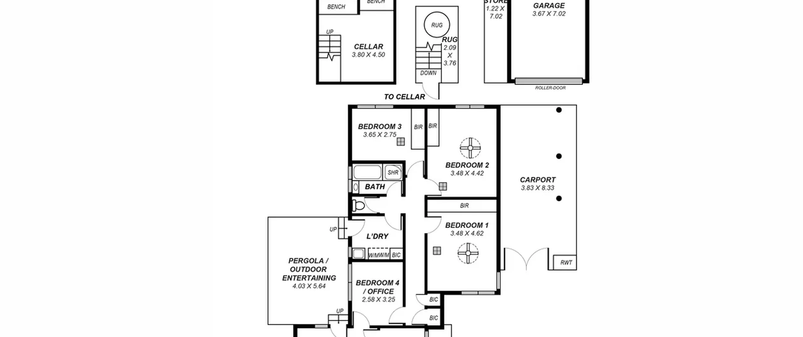
- Master bedroom with built-in robe and ceiling fan
- Spacious bedroom 2 with built-in robe and ceiling fan
- Good sized bedroom 3 with built-in robe
- Bedroom 4 or study
- Neat and tidy kitchen with dishwasher, gas cooktop, walk-in pantry, ample bench and cupboard space
- Casual meals area adjacent kitchen
- Multi-purpose room adjacent kitchen suitable for office, study or play room
- Light filled family room with ceiling fan and gas heater
- Neat and tidy bathroom with separate bath and shower and floor to ceiling tiles
- Separate laundry
- Undercover outdoor entertaining
- Complete roof restoration with heat reflective sealer/paint
- All new guttering around the home
- Solar electrical system with 6 panels
- Freshly painted outside
- Magnetite double glazing on all lounge room windows
- Roller shutters on all front windows, lounge, main bedroom and windows either side of front door
- Evaporative air conditioning, with vents in all bedrooms, lounge and kitchen
- Garden shed with power points and light
- 4.5m x 3.5m x 2m high underground wine cellar/workshop
- Lock up garage
- Rumpus room which could also be used as a teenage retreat
- Carport with double gates
- 10ft wide driveway
- Heaps of parking for the caravan or boat
- Apple, pear, almond, peach, orange, mandarin, grapefruit and lemon trees
- NBN connected
- Loft with crawl boards and lights
- Flick Pest Control yearly inspection and treatment
- Rainwater tanks with connection to the kitchen and toilet
- Hot water tap also connected outside
Located only approximately 5 minutes' walk to Anstey Hill, minutes away from St Agnes Shopping Centre, a variety of sought after schools, parks and public transport options including the city via the O'Bahn. In close proximity to all of the shopping and entertainment that the newly refurbished Tea Tree Plaza has to offer.
For further information please contact Fadi Oudih on 0455 999 007 or 8269 7711 (office).
RLA 200591
