Developer's Dream, Tradie's Heaven or Family Delight!
This solid brick family home situated on an adequate 730sqm (approximate) allotment in Valley View boasts beautiful polished timber floorboards, dual living areas, great size secure rear yard and massive outdoor entertaining area. Additionally offering plenty of room for your caravan, boat or trailer.
This home is sure to appeal to families looking for convenience and room to play or investors looking to rent out and reap the rewards. Perfect to move in and enjoy, with the option to upgrade to your own taste later. Currently tenanted, please contact agent for further information.
Features that make this home special:
- Classic façade with approxiamtely 19.3m frontage
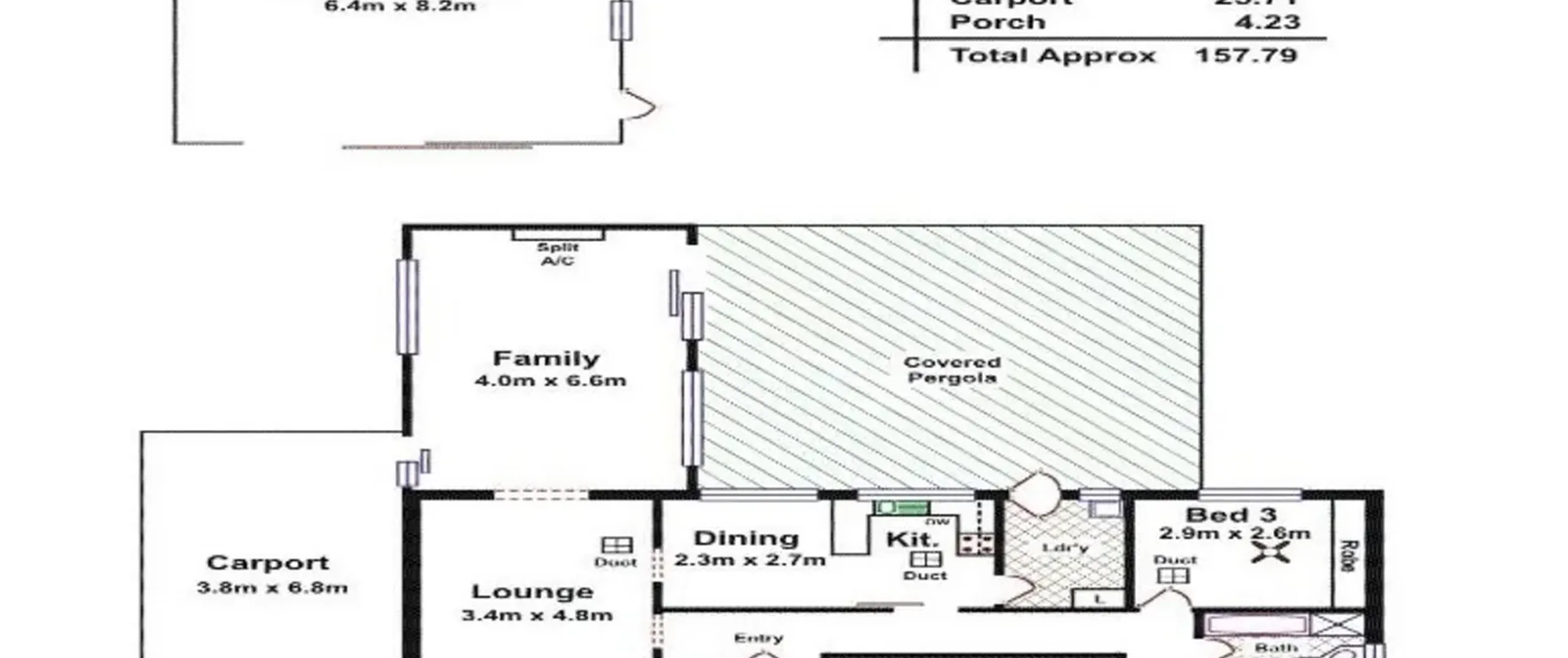
- 3 practical sized bedrooms with carpeted floors, sliding built-in robes and ceiling fans
- Formal lounge room
- Large family room with split system air conditioner
- U shaped kitchen with stainless steel freestanding oven, overhead range hood, Electrolux dishwasher and breakfast bar
- Casual meals area adjacent kitchen
- Main bathroom with corner vanity, feature tiling and separate bath/shower area
- Separate toilet for convenience
- Separate laundry with freestanding trough and linen cupboard
- Ducted evaporative air conditioning
- Enormous paved pergola with pitched roof, ideal for outdoor entertaining
- Single carport with automatic roller door, internal access and drive through access to double garage in rear yard
- Spacious rear yard with plenty of room for the kids or pets to play
Additional features:
- 2 x Rainwater tanks
- Roller shutters to front windows
- Rinnai temperature controlled hot water system in kitchen
Superbly located only minutes away from all the shopping and entertainment that Westfield Tea Tree Plaza has to offer. Within walking distance to Sonia’s Pastries & Cakes, Valley View Tennis Club, Valley View Par 3 Golf Course, public transport options and a variety of local parks. The ever popular Waterworld Aquatic Centre is only a short drive away. Additionally in close proximity to a variety of excellent public and private schools, including Gleeson College and Kildare College.
Please note: Photos and floor plan of the property are not current
For further information please contact Lidija Kies on 0477 779 579 or 8269 7711 (office).
RLA 200591
