Superb Family Home with Swimming Pool and Granny Flat!
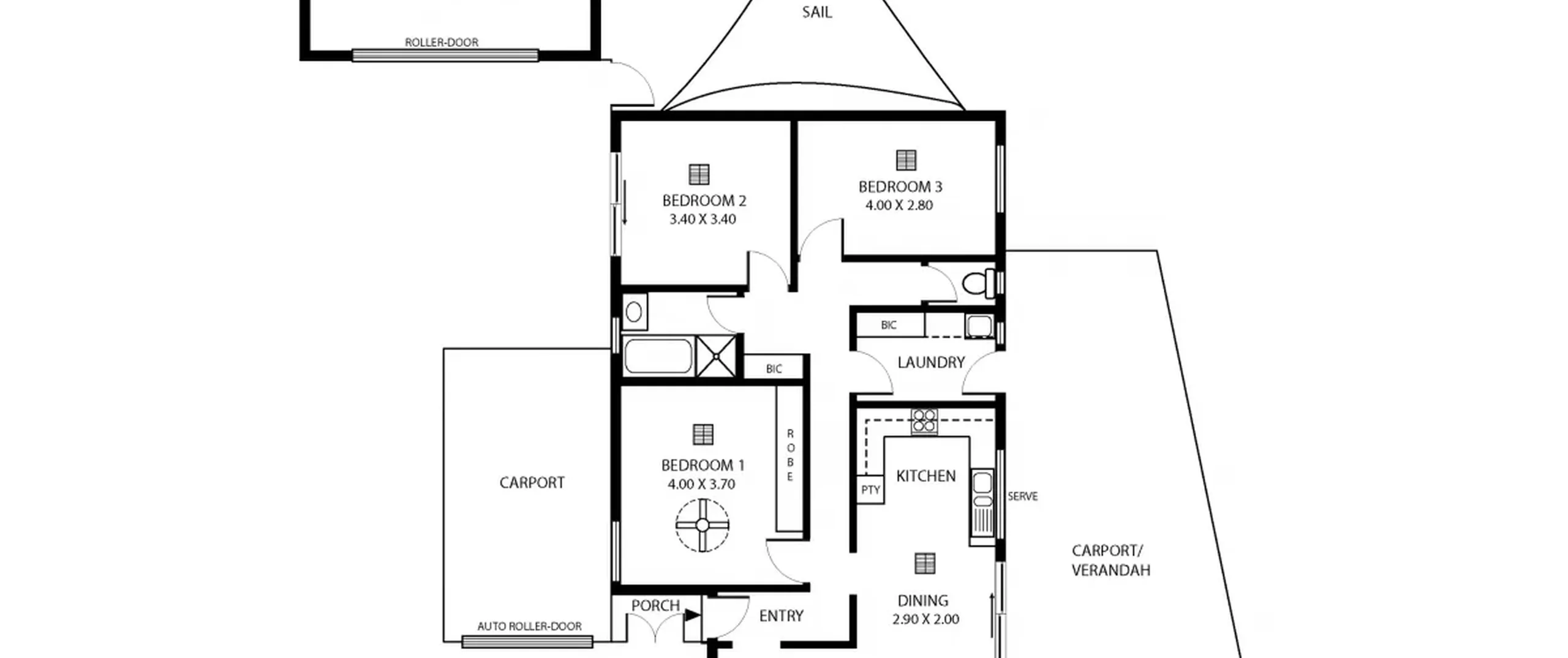
On offer is this rare 3 bedroom + 1 bathroom home (main house) and 1 bedroom + 1 bathroom (granny flat) property which sits in a prime location within close proximity to all amenities and is set on a generous 594 sqm (approximate) allotment. Once you step inside you will notice that the light filled living areas embrace the natural ambience as they flow through to the rear and the sensational in-ground swimming pool. Excitingly, this fantastic home boasts a 1 bedroom granny flat and workshop and additionally features dual driveways and 2 carports, so there is plenty of room for your caravan, boat or trailer.
There is nothing to do but move in and start enjoying the lifestyle this property offers!
Features that make this home special:
- Large master bedroom with ceiling fan and built-in robe
- Good sized bedrooms 2 and 3
- Light filled lounge with wall unit air conditioner
- Near new kitchen with gas cooktop, dishwasher and servery
- Dining area adjacent kitchen
- Clean and tidy bathroom with separate bath and shower + separate toilet
- Spacious laundry
- Additional storage space
- Ducted evaporative air conditioning throughout
- Gas ducted heating throughout
- Paved patio with shade cloth overlooking pool
- Sparkling in-ground swimming pool
- Granny flat/rumpus room/bedroom 4 with ceiling fan, split system air conditioner, kitchen and ensuite
- Computerised watering system
- Workshop with roller door attached to granny flat
- Carport/verandah with automatic roller-door
- Additional single carport with roller-door
- 5kw Solar electrical system for energy efficiency
- Gas continuous hot water system
- Local alarm for security
Perfectly positioned in the sought after suburb of Valley View and close to a variety of schools, Modbury Hospital, Tafe SA Gilles Plains and the O-Bahn for easy access to Adelaide CBD. Public transport options just a short walk away. Only minutes' drive to all the shopping and entertainment that the newly refurbished Tea Tree Plaza has to offer. All this and less than 13kms (approximate) to the Adelaide CBD.
For further information please contact Mark Fricker on 0413 000 845 or 8269 7711 (office).
RLA 200591
