Prepare To Be Impressed!
This well-loved home offers plenty of space for the whole family including the grandparents! With detached renovated rumpus room and ample internal and external living space, this home is sure to impress the whole family!
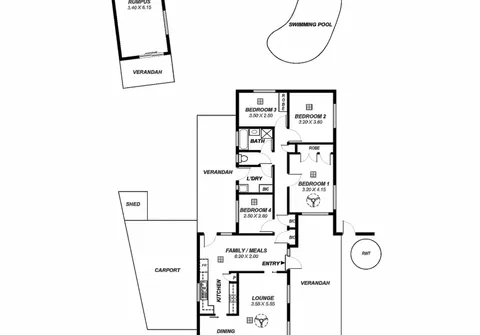
Features that make this home special:
- Master bedroom with built-in robe and ceiling fan
- Spacious bedrooms 2 and 3, bedroom 3 with built-in robe
- Additional 4th bedroom
- Large lounge and dining room with slow combustion wood fire heater and ceiling fan
- Modern renovated kitchen with stainless steel appliances and ample bench and cupboard space
- Light filled family and meals area
- Stylish bathroom with separate bath and shower + separate toilet
- Separate laundry with built-in cupboard
- Ducted evaporative air conditioning throughout
- Quality carpets and polished floorboards
- 2x expansive verandahs
- Sparkling swimming pool
- Low maintenance front and rear yard
- Garden shed
- Rainwater tank
- External rumpus room with walk-in robe and bathroom
- Single carport with double gate access
Location is the key with a variety of facilities within reach. Farrington Green Reserve with playground and open spaces is just at the end of the street! Also in close proximity to Gilles Plains Shopping Centre and only a short drive to all the shopping and entertainment that Tea Tree Plaza has to offer. A variety of schools including Kildare College and St Paul's College are also close by. All this and easy access into the CBD via The O’Bahn Interchange and other public transport options.
For further information please contact James Rawkins on 0408 081 826 or 8269 7711 (office).
RLA 200591
