Torrens Titled. Stunning, Stylish and Superbly Located!
This impressive two storey, Torrens Titled residence, is set on a low maintenance 408sqm (approximate) corner block within a tightly held pocket of this in demand suburb.
With a magnificent street presence, it is conveniently located just minutes’ walk away from the tranquil River Torrens Linear Park walking trail and the stunning tree lined streets of prestigious Walkerville.
Providing modern contemporary living through light filled living areas, high ceilings, three generous sized bedrooms and undercover outdoor entertaining area. A 12 panel solar electrical system, ducted air-conditioning and double garage with automatic panel lift doors under the main roof completes the offering.
Immaculately presented, thoughtfully designed and boasting quality fixtures and fittings together with a stylish, neutral decor throughout, you'll have to be quick to secure this one!
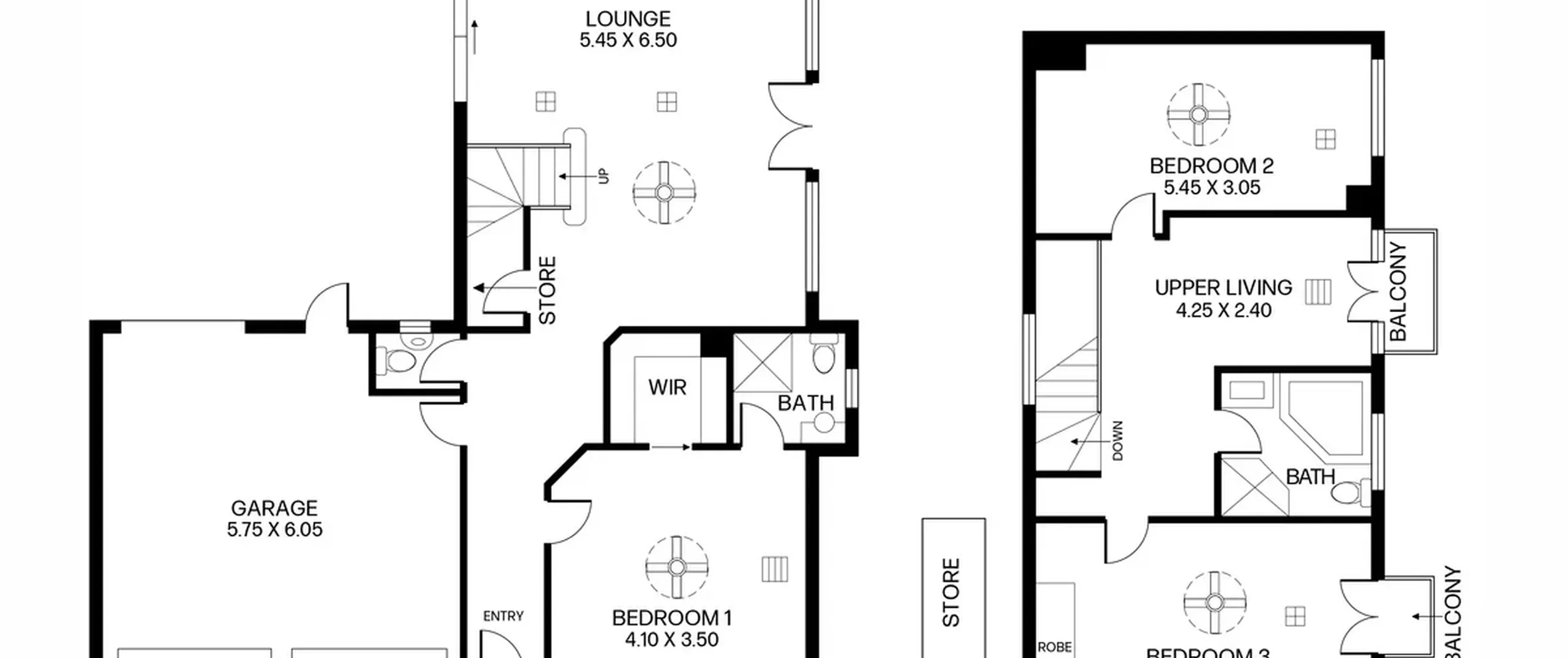
Lower level comprising of:
- Large master bedroom with walk-in robe, ceiling fan and ensuite, featuring floor to ceiling tilling
- Luxurious and light filled open plan living, dining and kitchen area
- Glistening, white kitchen with gas cooktop, dishwasher, breakfast bar, island bench and ample bench and cupboard space
- Powder room for your convenience
- Separate laundry
- Under stairs storage
- Verandah, perfect for outdoor entertaining
- Low maintenance front and rear garden
- Storage shed
- Double garage with automatic panel lift doors, direct internal and external entry
Upper level comprising of:
- Spacious bedrooms two and three both with ceiling fans, bedroom three with built-in robe and private balcony
- Glistening main bathroom with separate bath and shower, featuring floor to ceiling tilling
- Valuable second living living area with balcony
Admirably located only 5.7 kilometres (approximately) to the Adelaide Oval Riverbank Precinct, University District and CBD. Close to exceptional public transport and numerous council-maintained reserves. Excellent education and childcare opportunities including Vale Park Preschool & Vale Park Primary School, St Andrews School, Walkerville Primary School, St. Monicas and the Precious Cargo Education Montessori, Wilderness & St. Peters Colleges are all only a short distance away. Great shopping options on Walkerville Terrace and Marden Shopping precincts are also close by.
All information contained herewith, including but not limited to the general property description, price and the address, is provided to Boffo Real Estate by third parties. We have obtained this information from sources we believe to be reliable; however, we have not verified and do not guarantee its accuracy. The information contained should not be relied upon and you should make your own enquiries and seek advice in respect of this property or any property on this website.
RLA 313174
