Rare Opportunity in a Fabulous Location, Vale Park (Walkerville Council) Large modern Family Home with Pool!
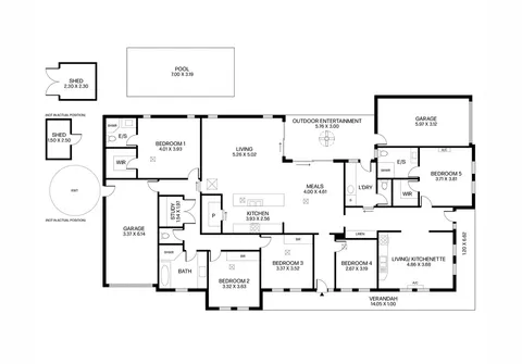
This modern reproduction villa is sure to impress with its wrap around verandah and self-contained granny flat under the main roof including a valuable second kitchen. Boasting five bedrooms and three bathrooms, plus a separate study nook with clever storage, this home is sure to be appreciated by the lucky new owner. With a practical and well-designed layout offering two garages and ample off-street parking for extra vehicles or your boat, caravan or trailer.
The granny flat is located under the main roof and boasts flexibility, as it can be closed off from the rest of the house, incorporating a well-equipped kitchen, additional living space and a generously sized bedroom with ensuite and access to a separate garage. Here, you will have endless opportunities and can utilise this space as a parents or teenage retreat. Alternatively, explore the option to rent out for an extra income.
Outside you will be impressed with the stunning magnesium pool offering a multitude of potential health benefits and outdoor undercover entertaining space for everyone to enjoy poolside food & beverages.
Offering the ideal lifestyle being located close by to all local amenities including the Walkerville Shopping Precinct , nearby to one of Adelaide's best kept secrets a short 2-minute walk to the fabulous River Torrens linear park or just a short drive to to the Adelaide CBD, riverbank precinct and Adelaide oval with public transport options at your fingertips.
Features that make this home special:
- Large master suite with walk-in wardrobe and ensuite
- Generous bedroom 2 and 3 with built-in robes
- Versatile fourth bedroom of good size
- Stylish main bathroom with spa bath + shower and separate toilet for added convenience
- Light filled open plan kitchen, living and meals area that flows effortlessly to the outdoor entertaining that overlooks the pool
- Well-equipped stylish and modern kitchen with gas cooktop ,stainless steel appliances, ample cupboard and bench space and complete with a walk-in pantry and dishwasher
- Study nook with clever hidden storage space
- Two-way laundry with external access and separate w/c offering convenience for poolside guests
- Self-contained granny flat under main roof with separate external entrance
- Generous bedroom five with walk-in robe, ensuite and complete with wall unit reverse cycle air-conditioner
- Additional open living/kitchenette space with gas cooktop and wall unit reverse cycle air-conditioner
- Separate single car garage with private access to the rear yard
Additional features:
- Outdoor entertaining space overlooking the swimming pool, complete with ceiling fan
- Sparkling magnesium pool with solar heating and potential health benefits, it's like having your own health spa at home
- Added single car garage with internal access to main house
- Two garden sheds
- Rainwater tank
- Ducted reverse cycle air-conditioning throughout main house
- 2.8KW Solar electrical system
Admirably located just a short walk to the River Torrens Linear Park, public transport and numerous council-maintained reserves. Adelaide Oval and the fabulous Riverbank Precinct is just 5kms (approximately) away. Various shopping centres are just a short drive away for your convenience including the Walkerville Precinct with cafes galore. Exceptional education and childcare opportunities such as Vale Park Preschool, Vale Park Primary School, St Andrews School, Walkerville Primary School, St Monica's Parish School, Wilderness School and Prince Alfred College are all close by.
Do not hesitate as we anticipate many enquiries for this stunning opportunity.
For further information please contact Warwick Haseloff on 0499 111 996 or 8269 7711 (office).
Please Note: All grassed areas are for illustration purposes only.
All information provided has been obtained from sources we believe to be accurate, however, we cannot provide any guarantee and we accept no liability for any errors or omissions (including but not limited to a property's land size, floor plans and size, building age and condition). Interested parties should make their own inquiries and obtain their own legal advice.
RLA 313174
