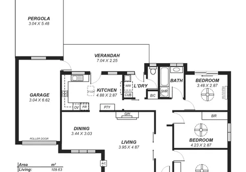
Fantastic Family Home
Sit back and relax in this spacious 3 bedroom family home. Set on a generous 610sqm block (approximately) with verdant front and rear yards and surrounded by other quality homes, this well maintained property is absolutely ideal for families looking to get into this tightly held suburb.
Features that make this home special:
- 3 spacious bedrooms all with ceiling fans
- Bedrooms 1 and 2 with built-in robes
- Bedroom 3 with split system air conditioner and rear yard access
- Large formal lounge with gas wall heater
- Light filled dining area
- Neat and tidy kitchen with gas cooktop and ample bench and cupboard space
- Casual meals area adjacent kitchen
- Bathroom with separate bath and shower + separate toilet
- Separate laundry
- Paved pergola area
- Garden shed
- Manicured front and rear yard
- Single garage with roller door
Situated just off Ascot Avenue with beautiful Linear Park just metres away. In close proximity to the newly developed Walkerville Shopping Complex, Marden Shopping Centre, local schools including St Andrews and Vale Park Primary, sporting grounds and public transport options including The O’Bahn. All this and only 5kms (approximately) to North Adelaide, the CBD and Adelaide Oval Riverbank precinct via Melbourne Street.
For further information please contact Warwick Haseloff on 0499 111 996 or 8269 7711 (office).
RLA 265613
The Vendor's Statement (Form 1), the Auction Contract and the Conditions of Sale will be available for perusal by members of the public -
(A) at the office of the agent for at least 3 consecutive business days immediately preceding the auction; and
(B) at the place at which the auction is to be conducted for at least 30 minutes immediately before the auction commences.
