Your Own Utopia in Uraidla
Set back from the road in a small enclave overlooking the township of Uraidla on a massive 2436sqm (approximate) block, this brick veneer Homestead Home built in 1992 boasts only one owner and an ideal location just 10 minutes to Stirling and 20 minutes to Adelaide CBD.
An enviable lifestyle is on offer, being only a short stroll to Uraidla Hotel, or the boutique cafe 'Lost in a Forest' for a bite to eat, or just sit back, relax and enjoy the privacy and serenity of being surrounded by an abundance of native flora and fauna with expansive views over the beautiful Piccadilly Valley to Mount Lofty.
Features that make this home special:
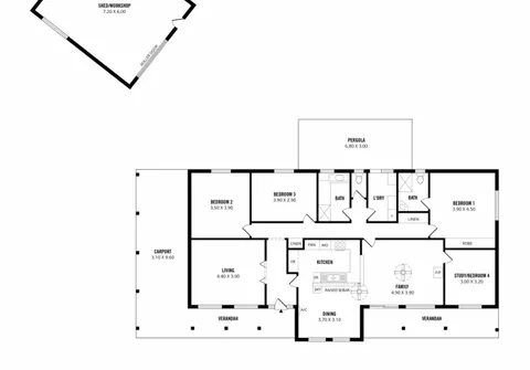
- Large master bedroom with built-in robe and ensuite
- Generous sized bedrooms 2 and 3
- Good sized bedroom 4/study
- Formal living area
- Large family room with combustion wood fire and ceiling fan for year round comfort
- Spacious kitchen with brand new Smeg oven and hob, raised breakfast bar and ceiling fan
- Dining room adjacent kitchen with air conditioning
- Main bathroom with separate bath and shower + separate toilet
- Separate spacious laundry with additional ample storage space throughout
- Dry stacked stonewall to the rear pergola with Little Hampton pavers
- Large shed/workshop with power, water and roller door
- Huge front yard with landscaped gardens including apple, pear, plum, quince, walnut, cherry and lemon trees and vegie gardens
- Fully fenced property
- 12m x 4m carport with ample additional off street parking available
- Insulated roof
- Abundance of native fauna
Ideally located just a stone's throw to all facilities including Uraidla Primary School, Playgroup and Kindergarten, shops and town oval with sporting facilities. Escape the summer heat with the cooler climate in the hills.
For further information please contact Nikki Lehmann on 0448 199 575 or 8269 7711 (office).
RLA 200591
