Charming Home with Potential!
This charming double brick home in the sought-after Poet’s Corner of Tranmere sits on a spacious 871qm (approximate) block, offering a fantastic opportunity to move in and enjoy, or renovate to suit your style and add value.
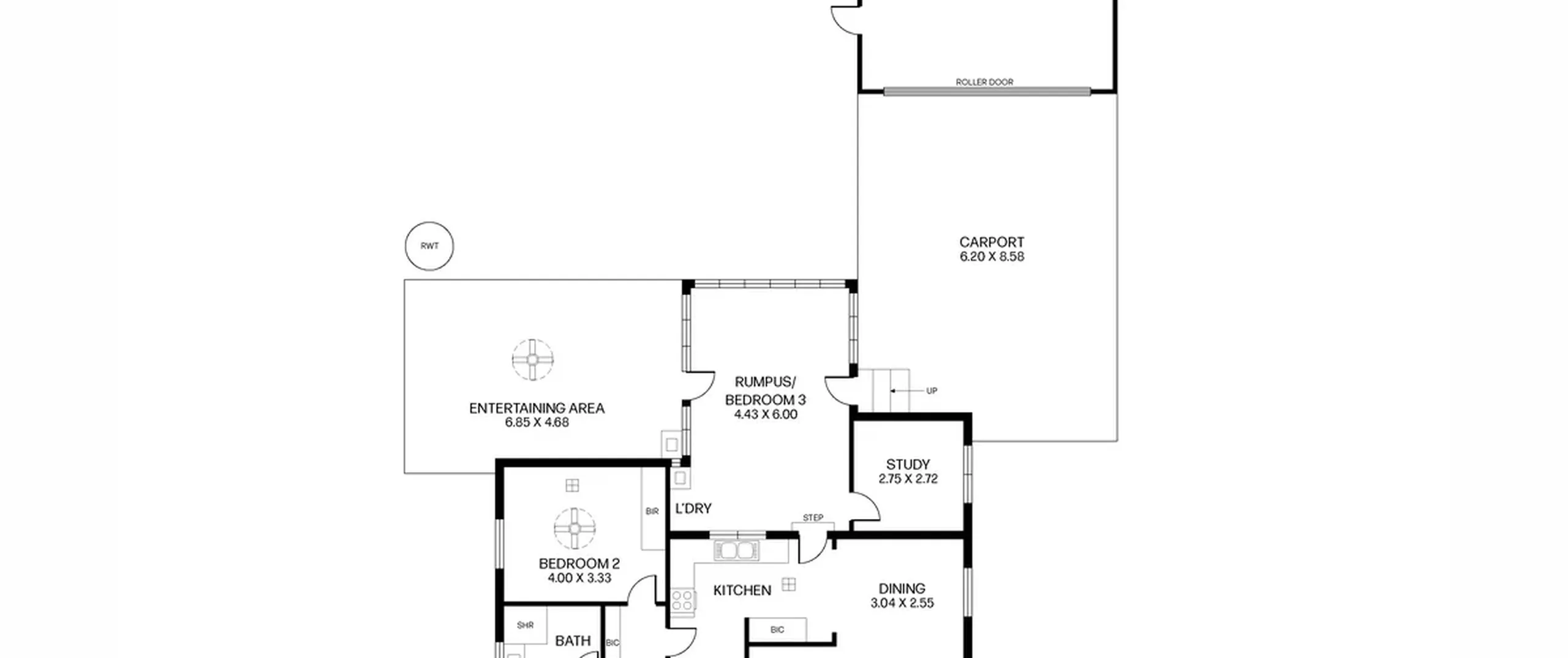
You will be greeted by a beautifully maintained front garden, and as you step inside, you’ll immediately appreciate the timeless elegance that flows throughout. The home features two bedrooms, a study, and one bathroom, along with an open-plan living and dining area that provides the perfect balance of comfort and versatility for modern living. There's also a rumpus room, which could easily be converted into a third bedroom, opening up to the outdoor area, ideal for relaxation and entertainment.
With generously sized rooms and a large backyard, this property offers a blank canvas ready to be transformed into your dream outdoor oasis. The home also provides ample undercover parking space, including room for your caravan or trailer, with a carport, garage, and rear yard.
Features that make this property special:
- Two large bedrooms, both equipped with ceiling fans and built-in robes; Bedroom 1 with split system air conditioning
- Large rumpus room that can be converted to bedroom 3
- Additional study room
- Spacious family room with gas heater and ceiling fan
- Updated kitchen with gas cooktop, and ample bench and cupboard space, adjacent to dining area
- Neat and tidy bathroom with shower, separate toilet for convenience
- Laundry in rumpus area
- Evaporative air conditioning system in family, kitchen and bedroom 1 and 2
- Pergola area with ceiling fan, perfect for outdoor entertaining
- Expansive lawn area, perfect for hosting family and friends
- Three rainwater tanks
- Two garden sheds
- Double carport with drive through access to double garage in rear yard
Located on the leafy street of Tranmere, this property offers both a peaceful sanctuary and prime access to nearby amenities. Positioned in a blue-chip area, it presents an exceptional opportunity to create your ideal home while securing a valuable investment in a highly desirable location. Just a short drive from the vibrant cafes and restaurants of Firle Plaza and on Magill Road, this home is also a brief stroll to the Gums Reserve and Third Creek. With convenient access to public transport and close proximity to a range of schools, including UniSA Magill Campus, this property truly combines lifestyle and location.
All information contained herewith, including but not limited to the general property description, price and the address, is provided to Boffo Real Estate by third parties. We have obtained this information from sources we believe to be reliable; however, we have not verified and do not guarantee its accuracy. The information contained should not be relied upon and you should make your own enquiries and seek advice in respect of this property or any property on this website.
The Vendor's Statement (Form 1), the Auction Contract and the Conditions of Sale will be available for perusal by members of the public - (A) at our office located at 78-80 North East Road, Walkerville for at least 3 consecutive business days immediately preceding the auction; and (B) at the place at which the auction is to be conducted for at least 30 minutes immediately before the auction commences.
RLA 313174
