Charming Refurbished Unit in Prestigious Suburb!
Discover a rare gem in one of Adelaide's most prestigious suburbs, just a stone’s throw away from the cosmopolitan Burnside Village, and mere minutes to Norwood Parade and Adelaide City. This refurbished ground floor residence is a perfect blend of comfort and convenience, designed to capture your attention.
An abundance of natural light floods the open-plan living and dining area, highlighting the plush new carpets that flow seamlessly throughout the newly installed kitchen.
First home buyers will appreciate this excellent entry-level opportunity into an in-demand City fringe area. Small families will value the access to exceptional educational facilities, while downsizers will love the private, secure, yet spacious environment. It’s also a convenient option for country residents seeking a City pad or for university students, thanks to the excellent nearby transport links.
This unit is not only perfect for living but also presents an attractive investment opportunity, given the area’s strong historical rental returns and capital growth.
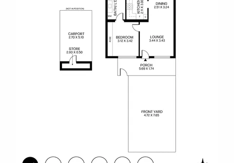
Features that make this home special:
- One generous sized bedroom with robe
- Light filled and open plan lounge and dining area with reverse cycle split system air conditioner and brand-new carpets
- Newly installed, on-trend kitchen with dishwasher, storage including overhead cupboard and sweeping bench tops
- Modern bathroom with laundry facilities
- Paved courtyard
- Single carport + storage unit
Enjoy an easy commute to the city, walk to the Parade or Burnside Village for a coffee, boutique shopping or the supermarket; eat out at one of the many local cafes and restaurants. Exceptional education and childcare opportunities such as Loreto College Marryatville, Marryatville Primary, Norwood Morialta High and Rose Park Primary are all close by. An abundance of nearby facilities, parks and open spaces can be enjoyed locally.
All information contained herewith, including but not limited to the general property description, price and the address, is provided to Boffo Real Estate by third parties. We have obtained this information from sources we believe to be reliable; however, we have not verified and do not guarantee its accuracy. The information contained herewith should not be relied upon and you should make your own enquiries and seek advice in respect of this property or any property on this website.
RLA 313174
