Smart Investment or Ideal Entry into Prestigious Teringie
Tucked away in a peaceful and private estate, this low-maintenance abode is ideally positioned in the highly sought-after blue-chip suburb of Teringie.
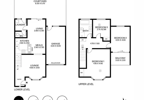
Featuring generous internal living, opening to a welcoming lounge that seamlessly transitions into the dining or second living area and kitchen, all leading out to a private, low-maintenance courtyard. Upstairs, you'll find three well-appointed bedrooms serviced by a central bathroom, with a balcony providing the perfect spot to enjoy your morning coffee in the fresh air. A separate laundry, additional ground floor toilet and secure garage complete this appealing home.
Whether you're seeking a perfect entry-level home in a highly sought-after location, looking to downsize near excellent local amenities, or after a quality investment with a current tenancy in place - this spacious townhouse ticks all the boxes.
Features that make this home special:
Upper level:
- Large master bedroom with built-in robe and bay window
- Two additional bedrooms, bedroom two with private balcony and bedroom three with built-in robe
- Neat bathroom with bathtub and separate shower
- Linen cupboard
- Ducted air-conditioning to bedrooms one and three
Ground level:
- Light filled lounge featuring bay window
- Dining/second living area adjacent lounge
- Kitchen with gas cooktop and breakfast bar
- Valuable second toilet for convenience
- Laundry with direct rear yard access
- Single garage
- Private, paved courtyard
Tenancy:
- Currently tenanted for $500/week until July 2026
Ideally positioned just moments from the vibrant cafés, restaurants, and shopping precincts of The Parade, Norwood, this location offers unbeatable convenience. Enjoy easy access to top-tier sporting facilities, public transport and a wide selection of Adelaide’s premier schools. All this, just approximately 9.9km from the Adelaide CBD.
All information contained herewith, including but not limited to the general property description, price and the address, is provided to Boffo Real Estate by third parties. We have obtained this information from sources we believe to be reliable; however, we have not verified and do not guarantee its accuracy. The information contained should not be relied upon and you should make your own enquiries and seek advice in respect of this property or any property on this website.
Looking to purchase this property as an investment? Speak to our Property Management team to see how we can assist.
RLA 313174
