Serene, Comfortable and Convenient Living
A rare opportunity is on offer to secure this well maintained family home in the popular suburb of Tea Tree Gully. Thoughtfully designed, this home provides multiple year round entertaining options with perfect natural flow from the generous internal living areas to the impressive outdoor entertaining area.
Boasting spectacular views of Antsey Hill and nestled in the lovely surrounds of Tea Tree Gully on a quiet and friendly street, the lifestyle on offer is enviable. With undercover carport and ample off street parking, there is plenty of room for your caravan, boat or trailer. Set on a generous 777sqm (approximate) block, this home is sure to impress the whole family!
Features that make this home special:
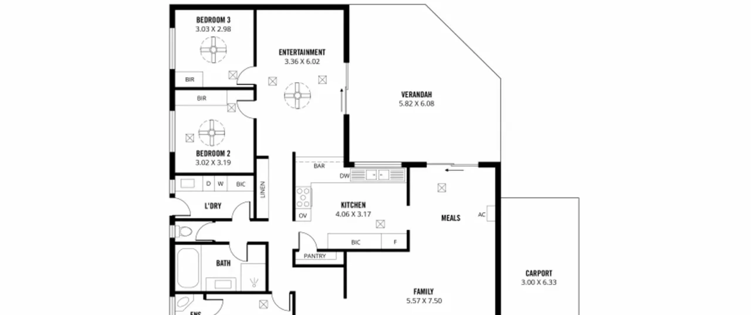
- Large master bedroom with ceiling fan, ensuite and walk-in robe
- Good sized bedrooms 2 and 3, both with ceiling fan and built-in robes
- Entertainment room with ceiling fan
- Light filled family room with Kent combustion heater
- Meals area adjacent kitchen with air conditioner
- Modern kitchen with ample bench and cupboard space, stainless steel appliances, black mirror splash back, powerpoints with USB port, Westinghouse free standing gas oven with electric stove top, walk-in pantry and breakfast bar
- New vinyl flooring and tiles
- LED lighting throughout
- Bathroom with separate bath and shower + separate toilet
- Renovated laundry with ample storage space
- Ducted evaporative cooling throughout
- Ducted gas
- Spacious verandah installed in 2013, perfect for outdoor entertaining
- Large, secure tiered back garden with plenty of room to play
- Large 3x4m garden shed
- Single carport with automatic roller door
- Additional off street parking for up to 4 vehicles, perfect for your trailer, camper, boat or caravan
- 1kw solar electrical system for energy efficiency
- Roller shutters and security screen doors and windows throughout
- Bosch security alarm
- Motion sensor lighting
Located only minutes away from St Agnes Shopping Centre, a variety of sought after schools including St Agnes Primary School, parks including Anstey Hill and public transport options including the city via the O-Bahn. In close proximity to all of the shopping and entertainment that Tea Tree Plaza has to offer.
This is the perfect place to call home!
For further information please contact Graeme Brown on 0455 111 791, Jayden Kirk on 0448 225 517 or 8269 7711 (office).
RLA 200591
