When Quality Really Counts!
This executive, Torrens Titled design by Homestead Homes was built in 2014 and boasts generous proportions of 162sqm (approximately) of internal living and features premium fixtures on a low maintenance 343sqm (approximate) allotment.
The contrast between timeless and dramatic colour schemes throughout the home adds to its attraction whilst effortlessly combining the contemporary with the practical and allowing a wonderful sense of space and light.
Features that make this home special:
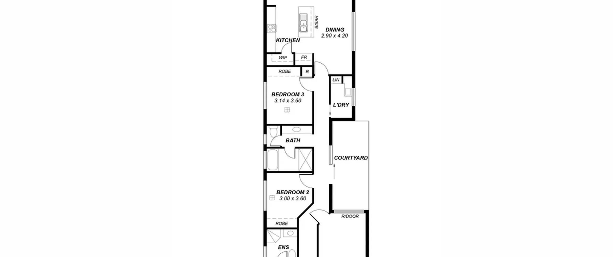
- Master bedroom with walk-in robe and ensuite
- Spacious bedrooms 2 and 3, both with built-in robes
- Large open plan lounge and dining room
- Modern kitchen with gas cooktop, dishwasher, walk-in pantry and ample bench and cupboard space
- Sparkling main bathroom with separate bath and shower + separate toilet
- Separate laundry with linen cupboard
- Ducted reverse cycle air conditioning throughout
- Roller shutters to facade windows
- Plantation shutters
- Courtyard area with verandah
- Expansive undercover outdoor entertaining area
- Garden shed
- Rainwater tank
- Low maintenance front and rear yard
- Single garage with automatic roller door, rear access roller door and direct internal access
Located only minutes away from St Agnes Shopping Centre, a variety of sought after schools, parks and public transport options including the city via the O'Bahn. In close proximity to all of the shopping and entertainment that Tea Tree Plaza has to offer.
For further information please contact Annamaria Varelias on 0487 487 383 or 8269 7711 (office).
RLA 200591
