Opportunity Awaits!
This charming home is set on a large block of 715sqm (approximately) with a 21m (approximate) frontage in the sought-after suburb of Surrey Downs. This is a 'blank canvas' home that boasts a highly desirable location and offers the new owner a multitude of opportunities including renovate and make it your own, invest and reap the rewards or re-develop (subject to planning consents).
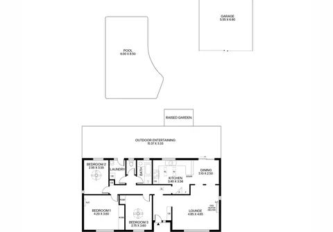
Offering three well-proportioned bedrooms with quality timber floors, a spacious lounge nestled just off the entry boasting heating and cooling for year-round comfort and a practical kitchen featuring ample cupboard and bench space. Completing the layout is a central main bathroom with a bath and a separate laundry with external access.
Outside, you can enjoy endless hours of relaxation in the entertaining area that overlooks a large in-ground swimming pool, perfect for hosting guests in summer. The good-size backyard offers established gardens, a tool shed and a garage for secure off-street parking. Astute buyers are sure to be impressed!
Features that make this home special:
- Light filled bedroom 1 with built-in robe and air conditioner
- Good sized bedrooms 2 and 3; both with ceiling fans and bedroom also with a built-in robe
- Spacious lounge with heating and cooling for year-round comfort
- Dining adjacent kitchen
- Well-equipped kitchen with ample cupboard and bench space plus plenty of natural light via the skylights
- Centrally located main bathroom with bath, separate shower and separate toilet
- Practical laundry with external access
- Expansive outdoor entertaining area, perfect for hosting guests
- Well-kept in-ground swimming pool
- Large backyard with tool shed and established gardens
- Drive through access to garage in rear yard for secure parking
Located close to a variety of early learning centres, kindergartens and local schools including Surrey Downs Primary, St. Francis Xavier, Gleeson College and Golden Grove High School. Public transport options are also close by. All this and only a few minutes' drive to all of the cafes, shopping and entertainment options that Fairview Green, The Grove Shopping Centre, The Village Shopping Centre and Tea Tree Plaza have to offer.
For further information contact Leisa Da Silva on 0488 222 882, Gabriel Titmarsh on 0497 191 000 or 8269 7711 (office).
All information provided has been obtained from sources we believe to be accurate, however, we cannot provide any guarantee and we accept no liability for any errors or omissions (including but not limited to a property's land size, floor plans and size, building age and condition). Interested parties should make their own inquiries and obtain their own legal advice.
RLA 313174
