Fantastic Value!
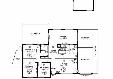
This delightful 3 bedroom home has been beautifully updated and provides a great opportunity for first home buyers wanting to get into the market and astute investors seeking a quality property to add to their portfolio. Set on a generous allotment of 576sqm (approximately), this home presents fantastic value!
Features that make this home special:
- Master bedroom with built-in robe and ceiling fan
- Spacious bedrooms 2 and 3, both with ceiling fans
- Large lounge with pot belly heater, gas heater and ceiling fan
- Stunning kitchen with gas cooktop and ample bench and cupboard space
- Casual meals area adjacent kitchen
- Light filled family room
- Updated bathroom with separate bath and shower + separate toilet
- Separate laundry
- Ducted evaporative air conditioning throughout
- Expansive undercover outdoor entertaining area
- External rumpus/games room
- Garden shed
- Low maintenance front and rear yard
- Single carport with roller door + dual access driveway for your convenience
Located in the highly sought after suburb of Surrey Downs and close to local schools, Fairview Park Shopping Centre and public transport options. All this and only minutes' drive to all of the cafes, shopping and entertainment options that The Village Shopping Centre has to offer.
Do not miss out on this opportunity!
For further information please contact Darren Cowey on 0439 160 161 or 8269 7711 (office).
RLA 200591
