Elegant Character Home Brimming with Potential
This charming sandstone-fronted character villa immediately captures the eye, perfectly positioned at the highly sought-after end of St Peters, adjacent to College Park and St Peters College. Its highly desirable heritage façade sets the tone for a home brimming with character and bespoke details throughout. With endless potential to update and personalise, this residence offers the perfect canvas to make it your own.
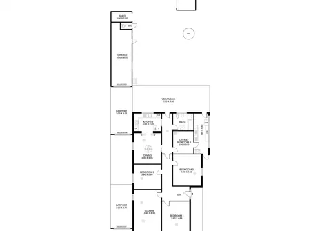
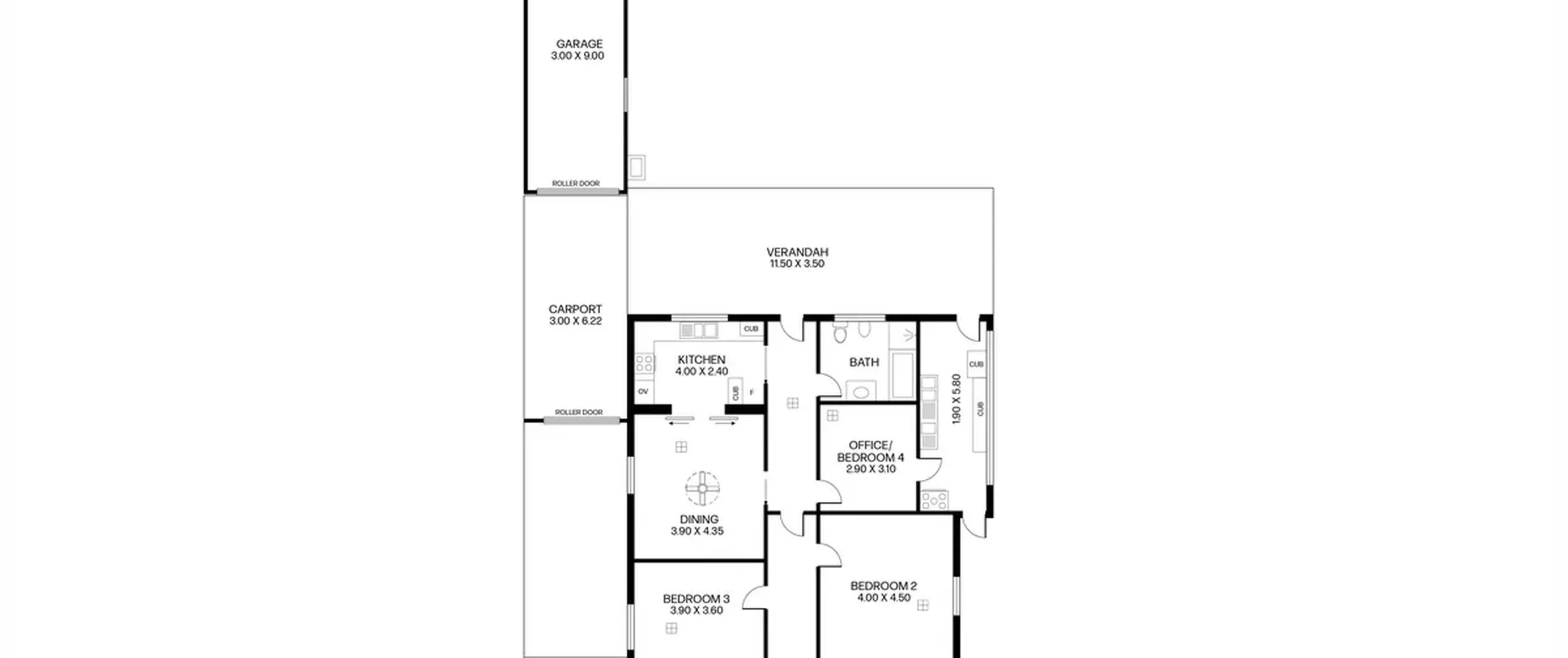
The versatile floorplan features three spacious bedrooms, plus an additional flexible room that can serve as a fourth bedroom or home office. Boasting lofty 3.3m high ceilings, the original kitchen opens to the dining area, ideal for family meals, while a separate lounge provides extra space for relaxation or entertaining.
Adding to the appeal of this generous land allotment is a triple-length carport. Entertain with ease under the rear verandah overlooking the backyard or relax on the front porch with a morning coffee in hand.
An exceptional opportunity awaits on a generous 692sqm (approximate) block, perfectly positioned close to all amenities on one of the area’s most coveted tree-lined streets. With its prime location and immense potential, this home is truly one not to be missed!
Features that make this home special:
- Generously sized master bedroom at the front, bathed in natural light
- Spacious second and third bedrooms, perfect for family or guests
- Flexible additional room, ideal as a home office, study or fourth bedroom
- Bright, sun-filled lounge room, perfect for relaxing or entertaining
- Well-appointed kitchen with timber cabinetry, cooktop, oven/grill, dual sinks and plenty of storage
- Separate dining room adjacent to the kitchen, complete with a ceiling fan
- Tidy bathroom featuring a bath, shower, bidet and toilet
- Expansive verandah, ideal for hosting gatherings or enjoying quiet afternoons outdoors
- Large rear shed with external toilet, plus multiple garden/tool sheds for storage
- Rainwater tank for sustainable living
- Triple-length carport providing ample parking
Ideally positioned just a short distance from the cafés, restaurants and shopping at Avenues Shopping Centre, as well as the vibrant offerings along The Parade, Norwood and Melbourne Street. Close to sporting facilities, excellent public transport options and some of Adelaide’s most prestigious schools, including St Peter’s College and East Adelaide Primary. All this, while being only 4km (approximately) from the CBD, North Adelaide and the Adelaide Oval Riverbank precinct.
All information contained herewith, including but not limited to the general property description, price and the address, is provided to Boffo Real Estate by third parties. We have obtained this information from sources we believe to be reliable; however, we have not verified and do not guarantee its accuracy. The information contained herewith should not be relied upon and you should make your own enquiries and seek advice in respect of this property or any property on this website.
The Vendor's Statement (Form 1), the Auction Contract and the Conditions of Sale will be available for perusal by members of the public - (A) at our office located at 78-80 North East Road, Walkerville for at least 3 consecutive business days immediately preceding the auction; and (B) at the place at which the auction is to be conducted for at least 30 minutes immediately before the auction commences.
Looking to purchase this property as an investment? Speak to our Property Management team to see how we can assist.
RLA 313174
