Private, 1041sqm (approx.) Allotment with Endless Potential!
Situated on a generous 1041sqm (approximate) block with a 31.8m (approximate) frontage and large external space, this property has endless potential and avid investors will appreciate this property's ability to attract a wide range of tenants from families to downsizers or retirees.
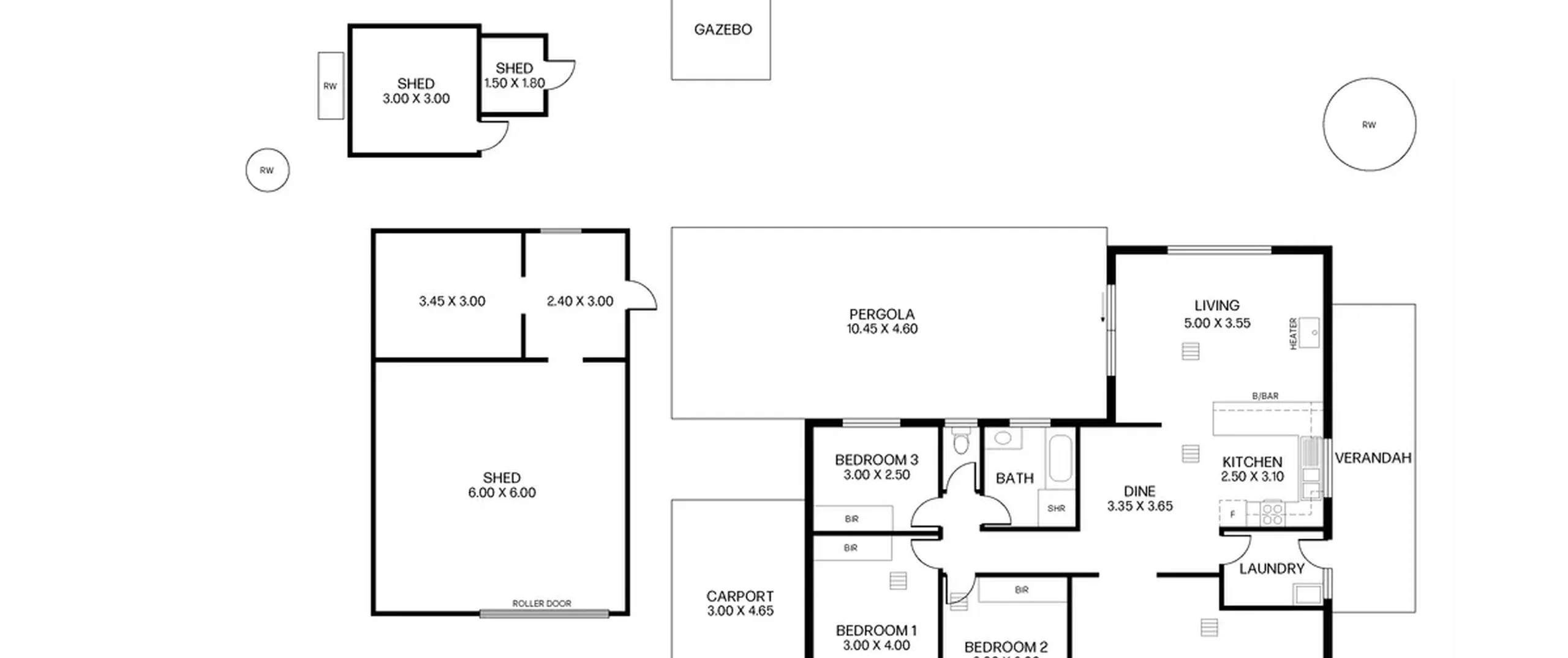
On the inside you will find three generous bedrooms each complete with built-in robes and serviced by a neat and tidy central bathroom. A formal lounge space to the front of the home welcomes you on entrance with an open plan dining/ kitchen and living space completes the floorplan.
Outside take full advantage of the expansive backyard complete with three detached sheds providing ample storage and room for your next project!
Features that make this home special:
- Three well-sized bedrooms, all with built-in robes
- Spacious living area to greet you upon entry
- Dining area adjacent to the kitchen
- Functional kitchen with standalone cooktop and oven, ample cupboard and bench space including breakfast bar
- Additional lounge area with combustion heater to enjoy in the cooler months
- Original bathroom with separate bath and shower
- Separate toilet for convenience
- Separate laundry with external access
- Ducted evaporative air-conditioning
- Expansive undercover pergola, perfect for outdoor entertaining
- Gazebo overlooking the large, grassed area
- 3x garden / tool sheds
- 3x rainwater tanks
- Large (over 9x6 metres) detached shed with roller door and external access
- Carport with electric roller door
- Well-established front gardens with long gated driveway for additional secure parking
Only minutes from the new Playford Alive development area, Munno Para Shopping City and Woolworths Playford. John Hartley School, Mark Oliphant College and other quality schools, parks and recreational facilities are also nearby. Within walking distance to public transport options, including the CBD via train. All of this and easy access to the Northern Expressway!
For further information please contact John Ktoris on 0438 945 704 or 8269 7711 (office).
All information contained herewith, including but not limited to the general property description, price and the address, is provided to Boffo Real Estate by third parties. We have obtained this information from sources we believe to be reliable; however, we have not verified and do not guarantee its accuracy. The information contained should not be relied upon and you should make your own enquiries and seek advice in respect of this property or any property on this website.
RLA 313174
