The View Should Be Framed!
4 Hobbs Court is a ranch style residence sitting on a generous, slightly elevated block of 649sqm (approximate), located across from the Hugh Johnson Boulevard Reserve which is undergoing an extensive makeover!
Built in 1992, boasting lovely street appeal, established gardens and in a popular and fast appreciating suburb, it offers breathtaking, uninterrupted views from your doorstep with plenty of natural light and sunshine being a continual presence in the home.
Sit on the porch and gaze down on the ever-changing urban panorama across to the Sheidow Creek area and valley below.
The property offers the creative buyer the opportunity to see and work with its potential!
Features that make this home special:
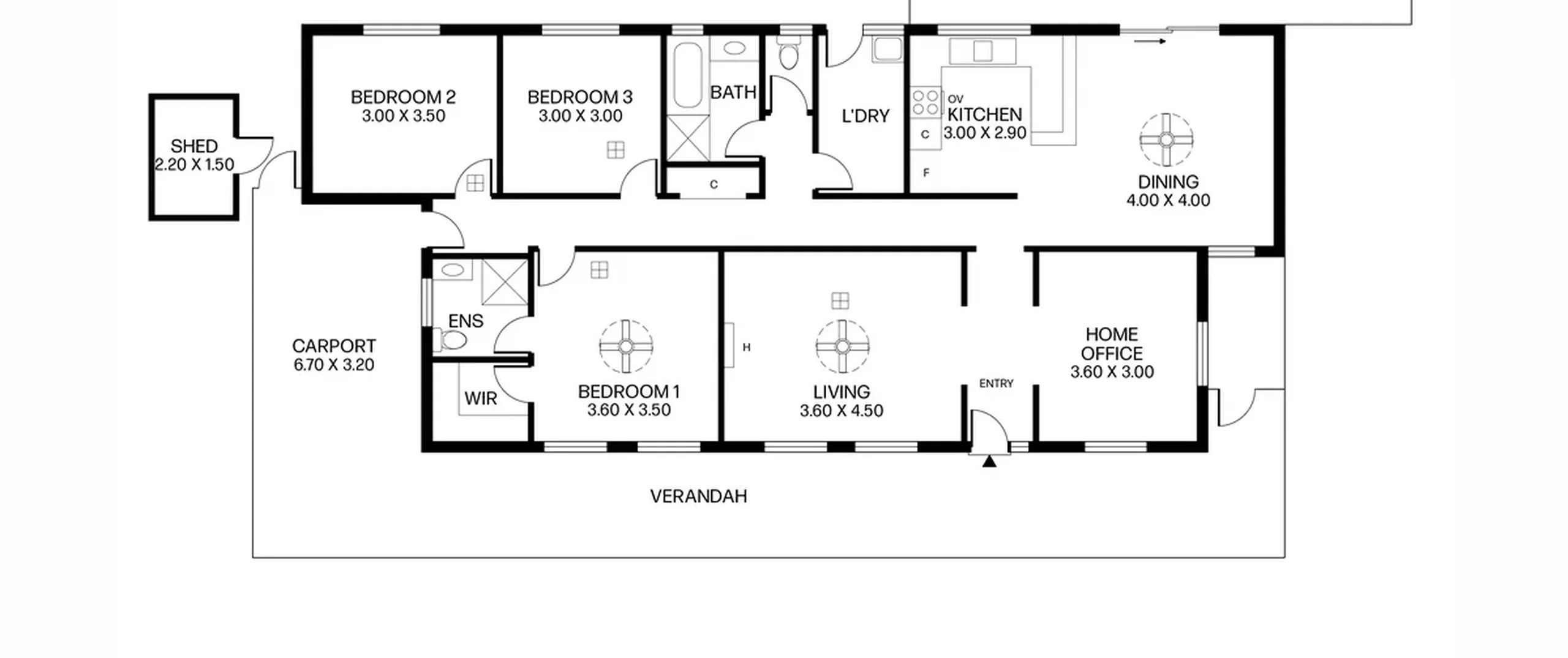
- 3 carpeted bedrooms, master with walk in robe and ensuite
- Open plan kitchen and dining
- Neat, functional kitchen with gas oven
- Well-appointed formal lounge with gas heater and large windows showcasing the stunning views
- Study area to the front of the home with views
- Central main bathroom with separate bath and shower
- Convenient 2nd toilet
- Spacious, separate laundry
- Linen closet for valuable storage
- Stunning, easy-care floating timber floorboards throughout living areas
- Gas instantaneous hot water system (approximately 6 months old)
- Ducted evaporative air conditioning throughout
- Ceiling fans to dining / lounge and master bedroom
- Blinds to all windows
- Downlights
- Undercover verandah offering a generous space for all year entertaining
- Undercover carport for one car with internal access to the home
- Secure fencing
- Toolshed for added storage
A lifestyle location so close to Hallett Cove Train Station, a short drive from the Hallett Cove shopping centre and walking distance from Woodend Primary School. Less than 15 minutes driving to Christies or O’Sullivan Beaches and 5 minutes’ drive to the popular Hallett Cove Beach and Conservation Park (and the boardwalk offering dramatic sea and coastal views).
For further information please contact AnnaMaria Varelias on 0487 487 383 or 8269 7711 (office).
All information provided has been obtained from sources we believe to be accurate, however, we cannot provide any guarantee and we accept no liability for any errors or omissions (including but not limited to a property's land size, floor plans and size, building age and condition). Interested parties should make their own inquiries and obtain their own legal advice.
RLA 313174
