Gorgeous Family Sized Character Home!
What a place to call home! This exquisite, Circa 1910 symmetrical villa on 633sqm (approximately) of landscaped gardens, is situated in one of the most highly coveted streets in the local area. Transformed from its gorgeous origins to now include a substantial rear extension plus detached studio, it is a lifestyle property in a sensational City fringe location.
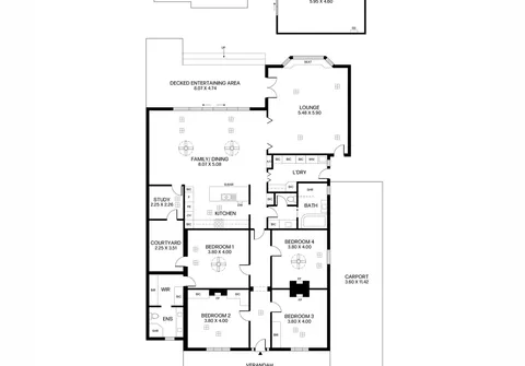
Effortlessly combining character charm with contemporary style, the home blends and retains original character features such as high ceilings, ornate fireplaces, plantation shutters, lead-light windows and timber floorboards. A thoughtfully designed floorplan is on offer with today’s family needs and entertaining in mind.
Stepping into the wide central hallway and past four spacious bedrooms it opens into the expansive open plan living, dining and kitchen area. A light filled separate living room with North facing bay window provides additional space for family or friends to relax and unwind. Dual glass sliding stacker doors flow out to the decked entertaining area overlooking the solar heated in-ground swimming pool and lawn area.
Highly sought after but rarely found, this is an opportunity not to be missed!
Features that make this home special:
- Master bedroom with walk-in robe, ensuite, ceiling fan and access to private courtyard
- Three additional spacious bedrooms all featuring ornate fireplaces
- Valuable separate study/home office
- Expansive open plan family, kitchen and dining area with ceiling fans, flowing seamlessly to the outdoor entertaining area
- Classic, white kitchen with gas cooktop, dishwasher, breakfast bar, ample bench and cupboard space
- Light filled second living room with beautiful bay window featuring built-in seating
- Gorgeous, three-way main bathroom with freestanding bath and separate shower
- Large laundry with external access
- Ducted reverse cycle air conditioning with zoning function
- Security system
- Instant gas hot water system
- Decked undercover outdoor entertaining area
- Spacious rear yard with lawn area, perfect for the kids and pets to run free
- Sparkling solar heated in-ground swimming pool
- Studio/home gym with split system air conditioner
- Irrigation system in front and rear garden
- Pool shed
- Double length carport
- 633sqm (approximately) landscaped gardens
- Zoned to Nailsworth Primary School
- Close proximity to some of Adelaide's best private schools
Your new home is delightfully within a short walk to all the cafes and restaurants that Cosmopolitan Prospect Road has to offer. A range of amenities are at your doorstep including Sefton Plaza and Northpark Shopping Centre. Easy walk to the bus, a full range of sporting facilities including Broadview Oval and Prospect Gardens – Narnu Wirra Park. All this and only 5kms (approximately) to the Adelaide Oval entertainment precinct and CBD.
All information provided has been obtained from sources we believe to be accurate, however, we cannot provide any guarantee and we accept no liability for any errors or omissions (including but not limited to a property's land size, floor plans and size, building age and condition). Interested parties should make their own inquiries and obtain their own legal advice.
RLA 313174
