Family Home Positioned on a Large, Original Sized Allotment!
Discover space and comfort in this well-maintained family home set on a rare original-sized allotment in Salisbury. It doesn’t get any better than this well-loved home that is bursting with potential offering you the chance to modernise and revitalise or enjoy as is.
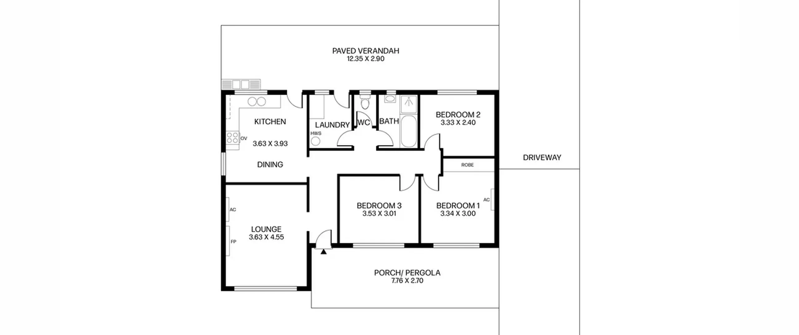
Inside, there are three good-sized bedrooms, a central main bathroom and a charming lounge room upon entry. A separate dining and kitchen are perfectly positioned and well-equipped to suit the cook of the home.
Outside, a large verandah awaits and overlooks the rear yard with an abundance of greenery. The layout is complete with a shed/garage accessed by the triple length driveway for extra parking or your caravan, boat or trailer.
This 726sqm (approximate) allotment represents genuine value and offers the new owner a multitude of options including: live in and enjoy, renovate and add your own personal touches, rent out and reap the rewards or redevelop (subject to planning consent).
Features that make this home special:
- Main bedroom with built-in robe and split system air-conditioner
- Two additional well-sized bedrooms
- Bright light-filled lounge with feature mantel place and air conditioner
- Functional eat-in kitchen with ample cupboard and bench space and direct external access
- Central main bathroom with separate shower and bath with detachable shower head
- Separate toilet for your convenience
- Separate laundry with access to rear yard
- Spacious paved verandah
- Expansive backyard with established trees and an abundance of room for kids and pets to play
- Garden shed
- Detached garage/shed with panel lift door for drive through access
- Long gated drive offering multiple secure parking spaces
- Large fenced front yard with established gardens
Ideally located in close proximity to a variety of primary and secondary schools including Salisbury Primary, Tyndale Christian School, and Salisbury East High. Public transport options, parks and council-maintained reserves nearby. All this and more with the amenities of Saints Shopping Centre, Parabanks Shopping Centre and Hoyts Salisbury being only a short drive away.
For further information please contact Paul Leombruno on 0439 160 161, Fadi Oudih on 0455 999 007 or 8269 7711 (office).
All information provided has been obtained from sources we believe to be accurate, however, we cannot provide any guarantee and we accept no liability for any errors or omissions (including but not limited to a property's land size, floor plans and size, building age and condition). Interested parties should make their own inquiries and obtain their own legal advice.
The Vendor's Statement (Form 1), the Auction Contract and the Conditions of Sale will be available for perusal by members of the public - (A) at our office located at 78-80 North East Road, Walkerville for at least 3 consecutive business days immediately preceding the auction; and (B) at the place at which the auction is to be conducted for at least 30 minutes immediately before the auction commences.
RLA 313174
