An Easy-care Investment with Future Potential!
Welcome to your new home set on a generous original-size allotment that is bursting with potential. The property is currently tenanted until June so you can enjoy an instant return while you decide whether you want to live in or explore future development options (STCA).
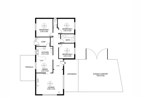
The home currently offers three bedrooms, all with easy access to the main bathroom with a bath and separate toilet. The living space is open-plan with air-conditioning and a wall heater as well as large windows that frame views over the backyard. A sliding door opens into the dining room and kitchen with beautiful wood floors, plenty of storage and a breakfast bar.
A laundry and linen cupboard complete the layout while outside, there is a double carport and a shed for added storage. A covered alfresco is ready for entertaining and those with kids will appreciate the spacious, fenced and shaded backyard. All of this is located just moments from the local park, supermarket and schools including Lake Windemere School.
Features that make this home special:
- 3 large bedrooms with ceiling fans
- Spacious lounge room with reverse cycle split system air conditioner and heater
- Functional open plan kitchen/dining with gas oven and cook top
- Main bathroom with separate bath and shower
- Convenient separate toilet
- Separate laundry with external access
- Large rear yard with undercover alfresco area and garden shed
- Double carport
- Tenanted until June 2022 at $310 per week
Located in close proximity to parks, reserves and a variety of schools. Shopping centres including Springbank Plaza and Parabanks Shopping Centre are both nearby. A short walk to public transport options including the train for an easy commute to the CBD.
Note: All grassed areas are for illustration purposes only.
For further information please contact James Rawkins on 0408 081 826 or 8269 7711 (office).
RLA 200591
