Room To Entertain Close To All Conveniences!
This abode sits on 580sqm (approximate) & offers a delightful living experience. Perfect for first homeowners, move in ready and boasting stylish updates throughout.
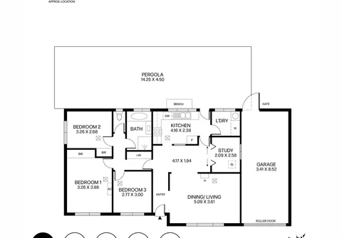
Upon entering, you will be greeted by a light and bright living/dining space adorned with a large floor-to-ceiling window, creating a bright and inviting atmosphere. To add to the cosy ambiance, there's a delightful kitchen space. The kitchen is equipped with stainless steel appliances, abundant cupboard space, and a view overlooking the expansive and well-maintained backyard.
The accommodation includes three tidy bedrooms, serviced by a central bathroom with a separate bath and shower. Also boasting a cosy study space and separate laundry.
Outside, there is a generously sized entertainment area and a spacious lawn, accompanied by a sizable shed to fulfill all storage and gardening requirements, as well as a double garage.
Features that make this home special:
- Three spacious light filled bedrooms
- Open plan living and dining space with adjacent kitchen
- Cosy kitchen with ample bench, cupboard space and stainless-steel appliances
- Curated study space, private and cosy
- Convenient and central bathroom with separate bath, shower and toilet facilities
- Separate laundry
- Ducted air conditioning throughout
- Spacious pergola perfect for entertaining and large lawned area
- Handy garden shed
Ideally located in close proximity to a variety of primary and secondary schools and public transport options. Only a short distance to the green open spaces of St Albans Drive Reserve and Canterbury Drive Reserve. All of this and just a short drive Saints Shopping Centre & all of the shopping and entertainment that Golden Grove Village Shopping Centre has to offer.
All information contained herewith, including but not limited to the general property description, price and the address, is provided to Boffo Real Estate by third parties. We have obtained this information from sources we believe to be reliable; however, we have not verified and do not guarantee its accuracy. The information contained should not be relied upon and you should make your own enquiries and seek advice in respect of this property or any property on this website.
RLA 313174
