Large Allotment in Prime Location
A fantastic opportunity is on offer to secure this family home on a large 713sqm (approximate) block in the popular suburb of Salisbury Heights. With dual driveways, undercover carport, double garage and side access, there is plenty of room for your caravan, boat or trailer. Perfect to move in straight away and enjoy, with the option to upgrade to your own taste later.
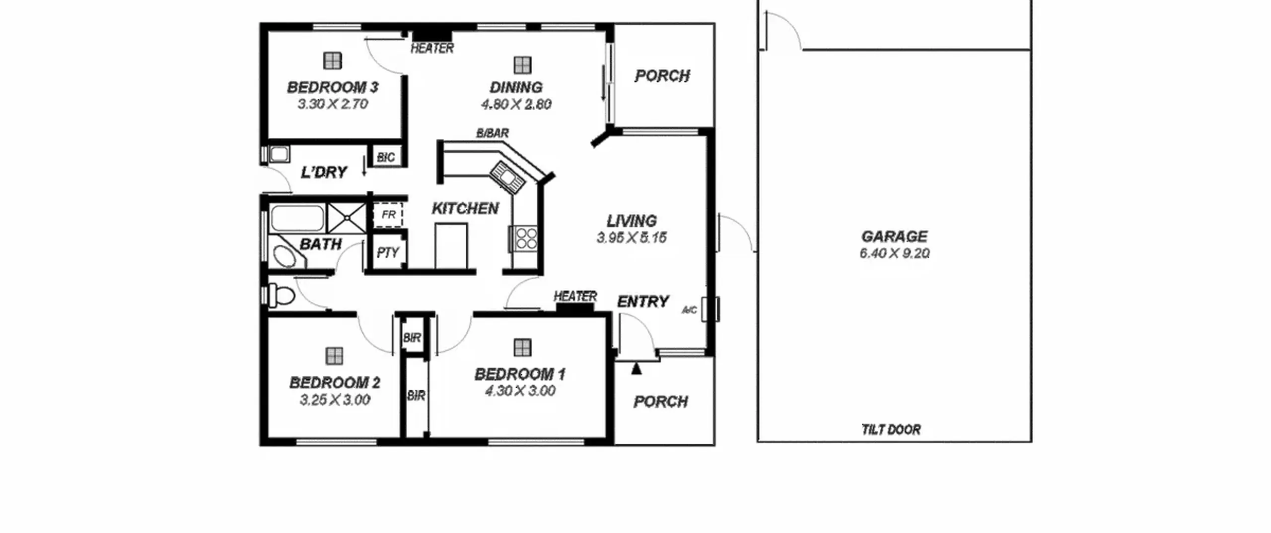
Features that make this home special:
- Large master bedroom with built-in robe
- Good sized bedrooms 2 and 3, bedroom 2 with built-in robe
- Large living area with air conditioner
- Modern kitchen with gas cooktop, ample bench and cupboard space and breakfast bar
- Dining room adjacent kitchen
- Neat and tidy bathroom with separate bath and shower + separate toilet
- Separate laundry
- Fully fenced rear yard with garden shed
- Fully powered double garage with concreted floor
- Double length carport
- Dual driveways
- Side access
Ideally located in a quiet street and in close proximity to a variety of primary and secondary schools and public transport options. All of this and just a short drive to all of the shopping and entertainment that Golden Grove Village Shopping Centre has to offer.
For further information please contact James Rawkins on 0408 081 826 or 8269 7711 (office).
RLA 200591
