Prime Opportunity Awaits: Spacious Double-Story Home!
Situated on a spacious allotment, this red colonial brick double-story home is nestled on a quiet street, providing a prime opportunity for a wide range of buyers. Whether you're a family seeking a new home, an investor exploring opportunities, first-time homebuyers, or anyone desiring a lifestyle in a prime location, this property is an enticing choice.
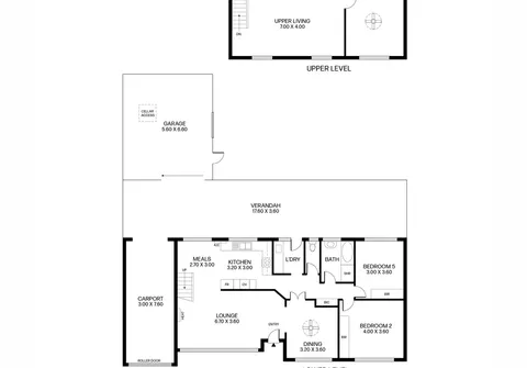
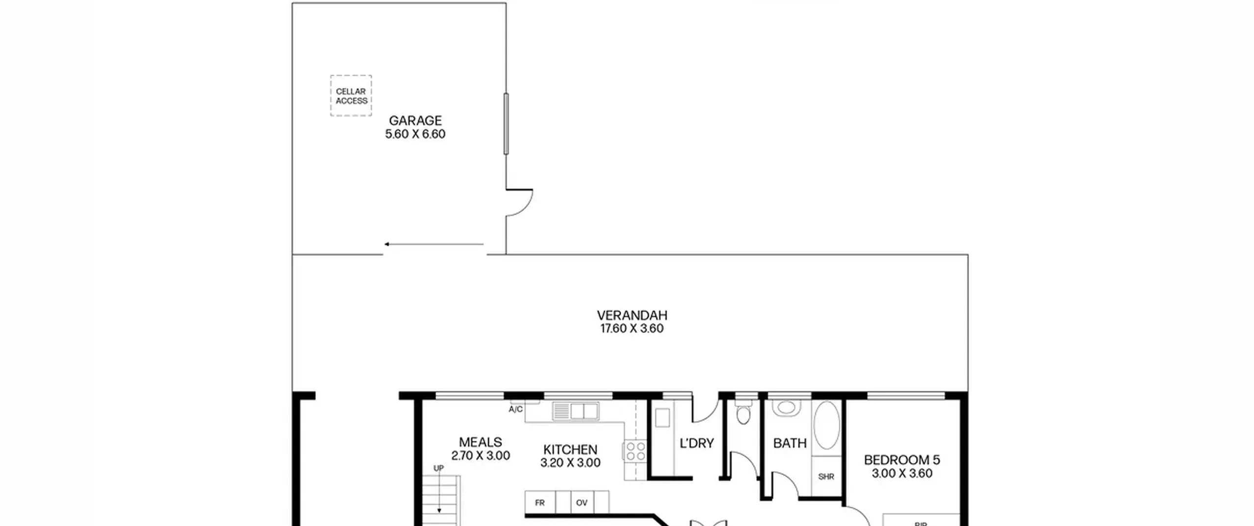
Upon entry, a generous lounge and dining room greet you, adorned with exposed pine wood floorboards, adding character to the space. The avid home chef will find delight in the kitchen offering a gas cooktop and an additional meals area. From here, a staircase leads you to the upper level with three bedrooms featuring ceiling fans, and the master bedroom with an ensuite, plus a living room. Additionally, two bedrooms are located on the lower level, along with a bathroom, separate toilet, and laundry.
Outside, a large verandah awaits, overlooking the yard, providing the perfect space to create your very own outdoor oasis. An additional garage with a cellar adds to the property's appeal, along with a carport completing the layout.
This wonderful home is located just moments from Salisbury East High School, Manor Farm Oval, and is close to local supermarkets, including Salisbury East Shopping Centre and the popular Saints Shopping Centre within close proximity. Astute buyers will surely be impressed with this fantastic opportunity!
Features that make this home special:
- Generous lounge and dining room with exposed pine wood floorboards
- Neutral kitchen with gas cooktop, ample storage and additional meals area
- Three bedrooms with ceiling fans on the upper level, including master with ensuite and split system air-conditioning
- Living room on upper level
- Additional two bedrooms on main level with mirrored built-in wardrobes
- Original main bathroom
- Separate toilet for added convenience
- Laundry with direct access to rear
- Large verandah overlooking the yard, perfect for outdoor relaxation
- Large garage with cellar
- Single garage with automatic roller door and drive through access
- 6.6kw Solar system
- Local alarm system
- Off street parking with U shaped driveway
In close proximity to a variety of primary and secondary schools including Tyndale and direct access to public transport options. Within walking distance to the green open spaces of Blue Hills Reserve and Manor Farm Oval. Local shops on Northbri Avenue are close by which includes Foodland, Chemist, Post Office and more. All of this and just a short drive to all of the shopping and entertainment that Parafield Home Maker Centre, The District Outlet Centre, Golden Grove Village and Westfield Tea Tree Plaza has to offer.
All information provided has been obtained from sources we believe to be accurate, however, we cannot provide any guarantee and we accept no liability for any errors or omissions (including but not limited to a property's land size, floor plans and size, building age and condition). Interested parties should make their own inquiries and obtain their own legal advice.
The Vendor's Statement (Form 1), the Auction Contract and the Conditions of Sale will be available for perusal by members of the public - (A) at our office located at 78-80 North East Road, Walkerville for at least 3 consecutive business days immediately preceding the auction; and (B) at the place at which the auction is to be conducted for at least 30 minutes immediately before the auction commences.
RLA 313174
