Reside Inside or Invest for Success
Set on a large 716sqm (approximate) allotment in a quiet cul-de-sac location and in the upcoming suburb of Salisbury East, this home offers the new owner a multitude of options including: live in and enjoy, renovate and add your own personal touches, or rent out and reap the rewards. Astute buyers will surely be impressed with this well maintained property and the potential to add value. This opportunity is not to be missed!
Features that make this home special:
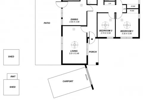
- Master bedroom with ceiling fan and built-in robe
- Generous sized bedroom 2 with ceiling fan and built-in robe
- Good sized bedroom 3 with ceiling fan
- Light filled living area with ceiling fan
- Functional kitchen with gas cooktop and ample bench and cupboard space
- Dining area
- Neat and tidy bathroom with separate bath and shower + separate toilet
- Separate spacious laundry + additional linen cupboards in hallway
- Ducted evaporative cooling throughout
- Large undercover patio, ideal for outdoor entertaining
- Fully fenced rear yard with 2 garden sheds
- Carport with roller door
Located in the upcoming suburb of Salisbury East, and close to schools, parks and public transport options. Only 6km (approximately) to Golden Grove Village Shopping Centre.
For further information please contact Graeme Brown on 0455 111 791 or 8269 7711 (office).
RLA 200591
