Secure investment within a Lifestyle village for over 55’s
Be impressed with the instant tenant that would love to stay. This investment within the secure retirement complex offers low maintenance, with the home offering a bright and airy lounge and meals area that forms the heart of the home.
The bedroom provides comfort and privacy, while the open flow to the undercover verandah creates the perfect space for indoor-outdoor living. Well cared for throughout, this home also features a private courtyard, ideal for relaxing or entertaining in the sun.
Village life Salisbury is designed for retirement living for residents over 55. The village complex is secured with pin code/remote auto gates and has the convenience of an on-site manager and the friendly staff are available 24 hours a day.
The amenities within Village life includes beautiful, maintained gardens, covered BBQ area, sheltered walkways, a library, community activities and entertainment centre. The village also provides daily meals as per the agreement of the complex.
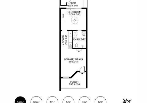
Features that make this home special:
- Spacious bedroom with ceiling fan, built-in robe and direct access to the bathroom
- Bright lounge and meals area with split system air conditioning
- Functional bathroom featuring vanity, shower, toilet and integrated laundry facilities
- Private, paved verandah for relaxing or entertaining
- Low-maintenance courtyard, perfect for outdoor living
- Garden/tool shed for extra storage
Ideally located opposite Hollywood Plaza, this one-bedroom home offers unparalleled convenience with Woolworths, Coles, Target and a variety of shops just moments away. Residents can enjoy nearby outdoor spaces such as Woodfield Drive Reserve, Little Para Linear Reserve and Strowan Park. With Salisbury Railway Station close by, commuting to the Adelaide CBD is quick and easy, making this home perfect for the astute investor looking for an instant tenant.
All information contained herewith, including but not limited to the general property description, price and the address, is provided to Boffo Real Estate by third parties. We have obtained this information from sources we believe to be reliable; however, we have not verified and do not guarantee its accuracy. The information contained herewith should not be relied upon and you should make your own enquiries and seek advice in respect of this property or any property on this website.
The Vendor's Statement (Form 1), the Auction Contract and the Conditions of Sale will be available for perusal by members of the public - (A) at our office located at 78-80 North East Road, Walkerville for at least 3 consecutive business days immediately preceding the auction; and (B) at the place at which the auction is to be conducted for at least 30 minutes immediately before the auction commences.
Looking to purchase this property as an investment? Speak to our Property Management team to see how we can assist.
RLA 313174
