Generous Allotment with Huge Frontage!
This solid brick home is positioned on an expansive 1040sqm (approximate) allotment with a wide 26m (approximate) frontage and provides great potential for the lucky new owner.
Nestled within a leafy district of Ridgehaven and a short stroll away from excellent recreational facilities including Waterworld, Modbury Sports & Community Club, Modbury Tennis Club, Ridgehaven Scout Group, Ashley Avenue Reserve, and more.
You might look to make some cosmetic upgrades and add significant value over time or capitalise on the generous frontage to build your dream home, equally perfect for investors looking to rent out and reap the rewards. The choice is yours! (subject to all necessary consents).
Features that make this home special:
- Three bedrooms, bedroom one with built-in robe and split system air conditioner
- Separate lounge room with heater and wall unit air conditioner
- Roller shutters on all front windows
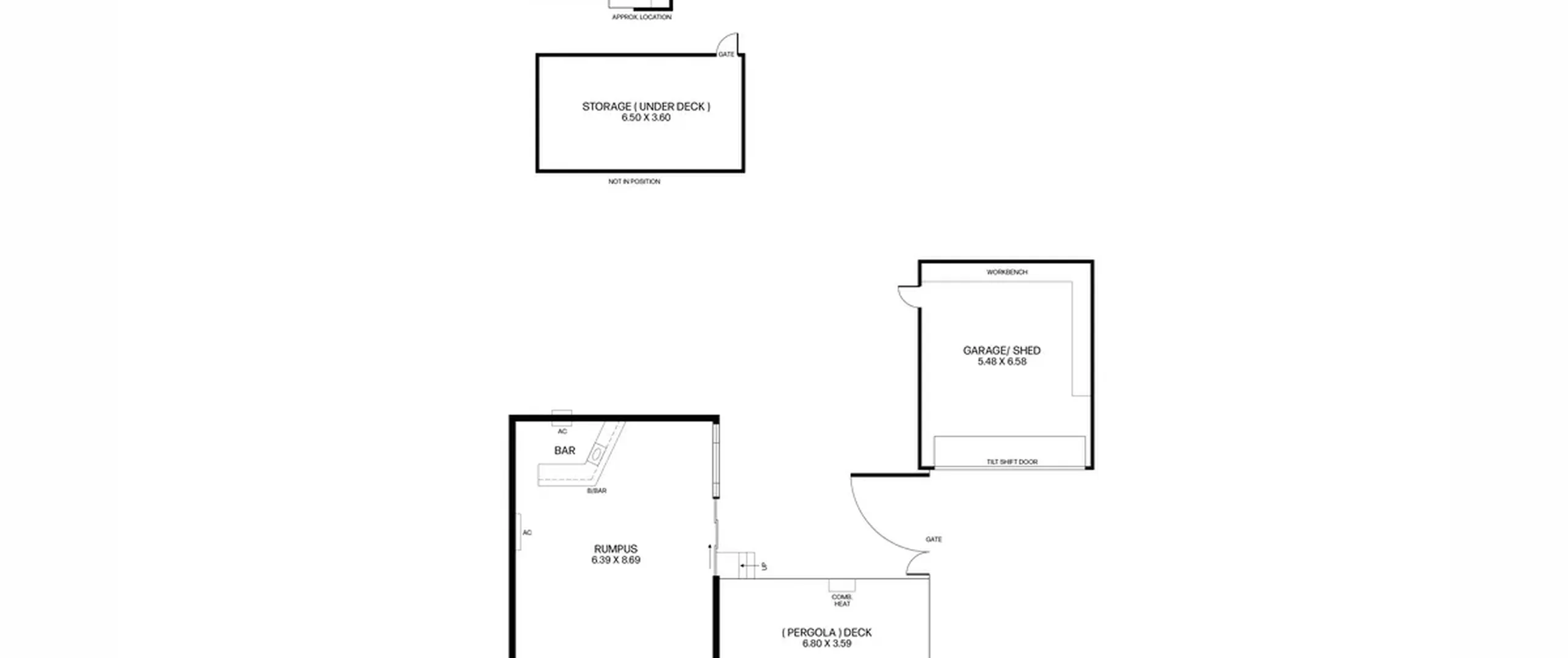
- Large rumpus room with bar and split system air conditioner
- Kitchen with gas cooktop and separate gas oven
- Dining area adjacent kitchen
- Bathroom with separate bath and shower + separate toilet for convenience
- Separate laundry
- Expansive rear yard with decked pergola, bricked bbq area on mains gas for outdoor cooking, outdoor entertaining area, garden shed, coupe and green house
- All outdoor areas/sheds with access to electricity
- Double garage/shed with long driveway for ample parking
Superbly located only minutes away from all the shopping and entertainment that Westfield Tea Tree Plaza has to offer. In close proximity to a variety of excellent public and private schools, including Ridgehaven Primary, Redwood Park Primary School, Modbury Preschool to Year 6, Banksia International High School, The Heights School, Pedare Christian College and Gleeson College. Easy access to the CBD via the O'Bahn at Tea Tree Plaza Interchange or simply walk to the bus stop just 150m (approximately) away.
All information contained herewith, including but not limited to the general property description, price and the address, is provided to Boffo Real Estate by third parties. We have obtained this information from sources we believe to be reliable; however, we have not verified and do not guarantee its accuracy. The information contained should not be relied upon and you should make your own enquiries and seek advice in respect of this property or any property on this website.
The Vendor's Statement (Form 1), the Auction Contract and the Conditions of Sale will be available for perusal by members of the public - (A) at our office located at 78-80 North East Road, Walkerville for at least 3 consecutive business days immediately preceding the auction; and (B) at the place at which the auction is to be conducted for at least 30 minutes immediately before the auction commences.
RLA 313174
