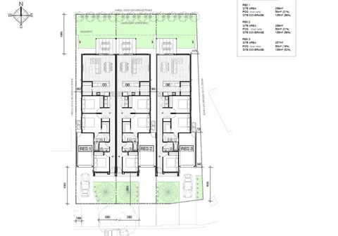
Opportunity Awaits with a 22.5m Frontage and Planning Approval for Three Row Houses!
This well-maintained 1971 built home, offers ample space and potential for your design dreams to come true. Set on a 734sqm (approximate) block with a commanding 22.5m (approximate) frontage and boasting a three-bedroom and one-bathroom layout, those wanting room to move and play will not be disappointed.
Investors can take advantage of the booming rental demand and land bank for the future or first home buyers can move in straight away and add instant equity through a simple cosmetic facelift. For developers, all the hard work has been done with council planning consent for three well-designed row houses (plans available on request).
Inside, a practical kitchen awaits the eager cook with lots of storage and bench space while the dining and living area is adorned with unique pendant lighting and vintage wood finishes. The bedrooms are generously sized with bedroom three containing a built-in robe.
Outside is where this property really shines as the large backyard has everything you could ever need including a verandah, pergola, established garden and shed. There is no shortage of space and therefore the addition of a pool (Subject to Council Consent) would only add to summer fun.
Features that make this home special:
- 3 good sized bedrooms; bedroom 3 offering a built-in robe
- Spacious living with split system air conditioner
- Dining adjacent kitchen for easy access
- Practical kitchen featuring breakfast bar and ample cupboard and bench space
- Main bathroom complete with bath, separate shower and separate toilet
- Laundry with external access
- Ducted air conditioning
- Expansive verandah overlooking the backyard
- Large fully fenced backyard with pergola area, garden shed and rainwater tank
- Double open carport
Ideally located in the quiet sought after suburb of Ridgehaven with easy access to public transport, access to the CBD via the O-Bahn, in close proximity to the newly renovated St Agnes Shopping Centre and a stone's throw from the popular Ridgehaven Primary School. Also just minutes’ from all the shopping and entertainment precinct that the recently renovated Westfield Tea Tree Plaza has to offer.
For further information please contact Graeme Brown on 0455 111 791, Andrew Tamburrino on 0447 888 177 or 8269 7711 (office).
RLA 200591
