Fantastic Opportunity!
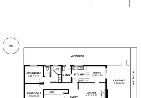
This delightful 3 bedroom home offers a great opportunity for first home buyers wanting to get into the property market and investors seeking a quality property to add to their portfolio. Equally, the size and dimensions of the land will also appeal to developers with a total land size of approximately 705sqm and an approximate 21.5m frontage.
Features that make this home special:
- Master bedroom with built-in robe
- Spacious bedrooms 2 and 3
- Light filled lounge with heater and air conditioner
- Modern kitchen with electric cooktop and ample bench and cupboard space
- Casual dining area adjacent kitchen
- Neat and tidy bathroom with spa bath and separate toilet
- Separate laundry
- NBN connection
- Expansive rear vernadah
- Established manicured front and rear yards
- Rainwater tank
- Double garage
- Single carport with automatic panel lift-door
Ideally located in quiet Ridgehaven with easy access to public transport, access to the CBD via the O’Bahn and in close proximity to the newly renovated St Agnes Shopping Centre. Just minutes away from all the shopping and entertainment that Tea Tree Plaza has to offer.
For further information please contact Darren Cowey on 0439 160 161 or 8269 7711 (office).
RLA 200591
