Stone Fronted City Fringe Charmer On 735sqm
First time offered to the market and presenting in immaculate condition. An exciting opportunity for savvy buyers seeking a well maintained character home to live in now and further improve over time. A prime location surrounded by other quality homes, within walking distance to North Adelaide and only a 10min (approximate) drive to the CBD.
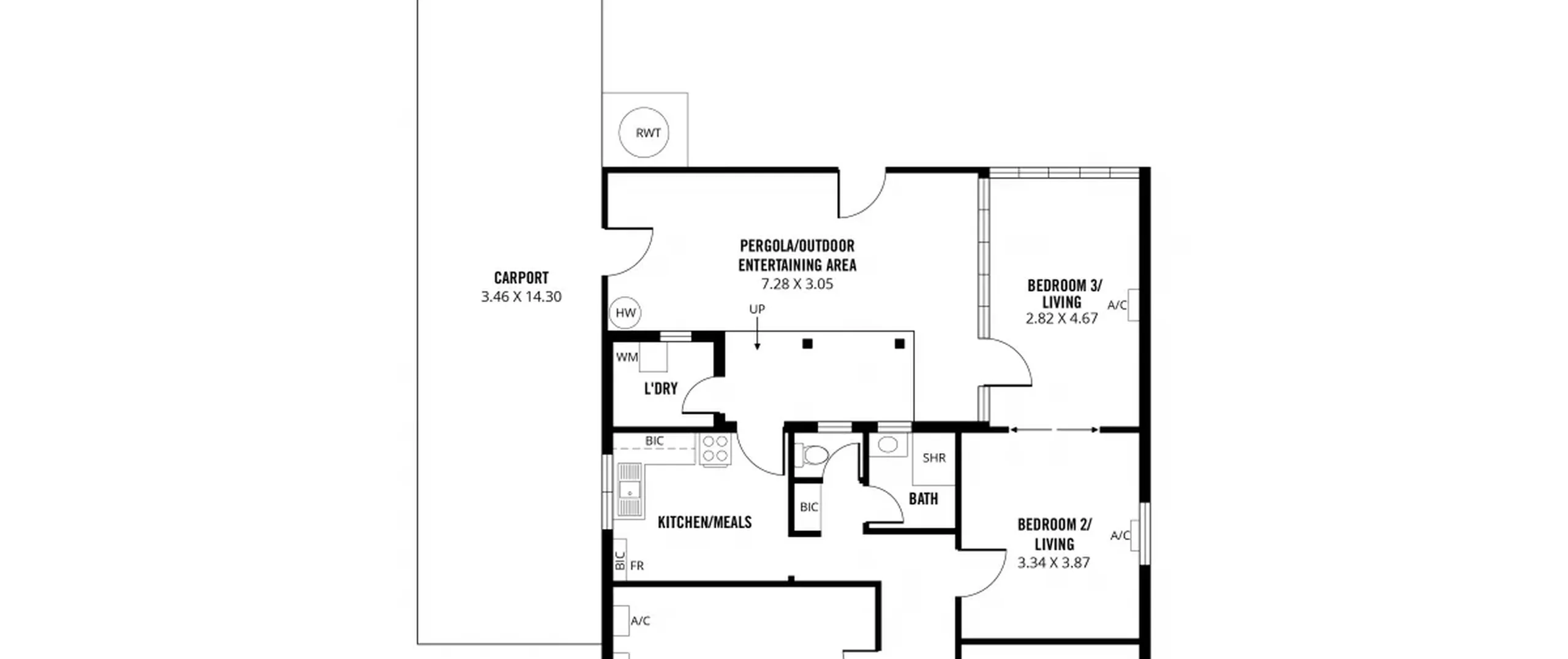
Offering a flexible floorplan which can accommodate three bedrooms (if required) or multiple spacious and light filled living areas. To the rear of the home you will find an entertaining area, substantial carport and garage. Immediately enjoyable as is for family buyers, also an attractive investment property in a popular, high growth suburb. Perfectly suited for a future family room extension with the original front rooms providing the perfect blank canvas for your creativity. Alternatively with over 700sqm (approximately) of land at your disposal, this may be the ideal location for you to build your dream home (subject to all necessary consents).
With so many townhouses and apartments being built around the city fringe, now is the time to secure this desirable character home with options aplenty for the future.
Features that make this home special:
- Appealing sandstone facade
- Large bedroom 1 with ceiling fan
- Generous sized bedrooms 2 and 3/living areas with air conditioner
- Spacious, light filled lounge with air conditioner and gas heater
- Practical kitchen with eat-in meals area
- Neat and tidy bathroom with separate toilet
- Separate laundry
- Pergola, ideal for outdoor entertaining
- Fully fenced, secure rear yard
- Triple length carport + garage
Less than 3kms (approximately) to all the fantastic shops, restaurants, cafes and entertainment that North Adelaide has to offer. In close proximity to Prospect Road, a variety of local private and public schools including Brompton Primary School and St Margaret Mary's School, sporting grounds and public transport options including train and bus.
For further information please contact Gabriel Titmarsh on 0497 191 000 or 8269 7711 (office)
RLA 200591
