Rare Find in Redwood Park!
The lucky new owners of this beautifully presented home will live within a peaceful and private pocket of Redwood Park. Situated on an enviable corner allotment of 778sqm (approximate), there is room for the whole family!
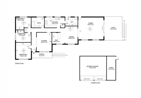
Updated and ready to enjoy, the property offers many sought after features including a spacious floor plan with light filled rooms and a sensational patio entertaining area with elevated views of the city and hills. Positioned on a lower level of the home is a double garage offering secure vehicle parking plus a shed for additional storage.
The layout is practical and well-designed with three good sized bedrooms and a central main bathroom that services the home. The kitchen has also been updated and provides quality appliances and an opportunity for all to cook up a storm while overlooking the landscaped gardens.
Astute buyers are sure to be impressed with the opportunity to acquire this home in such an in-demand area!
Features that make this home special:
- 1965 double brick build
- Light filled main bedroom complete with wall length built-in cupboards, ceiling fan and air conditioner
- Bedrooms 2 and 3 both with built-in robes and ceiling fans
- Spacious lounge room with gas heater
- Separate dining room boasting a built-in bar, combustion heater and split system air conditioner for year-round comfort
- Large family room, complete with ceiling fan and glass sliding doors flowing seamlessly through to the patio
- Stylish renovated kitchen featuring a gas cooktop, walk-in pantry, ample cupboard space and stainless-steel appliances including dishwasher and oven
- Well-appointed bathroom with separate bath and shower
- Updated laundry with built-in joinery and external access
- Ducted evaporative air conditioning throughout
- Decked patio, providing the perfect spot to entertain while enjoying views of the city and the hills
- Second decked entertaining area
- Impressive landscaped backyard, with room for kids and pets to play
- Fire pit
- Shed for additional storage
- Double garage with panel doors and double width driveway for additional off-street parking
- Side access with double gates, allowing potential storage for a boat, trailer or caravan
Superbly located only minutes away from all the shopping and entertainment that Westfield Tea Tree Plaza has to offer. Within a short distance to a variety of local parks, public transport options and Tea Tree Gully Golf course. The ever-popular Waterworld Aquatic Centre is only a short drive away. Additionally in close proximity to a variety of excellent public and private schools, including Redwood Park Primary, Banksia Park High, Gleeson College and The Heights.
For further information please contact Graeme Brown on 0455 111 791, Ben Krieg on 0447 888 177 or 8269 7711 (office).
All information provided has been obtained from sources we believe to be accurate, however, we cannot provide any guarantee and we accept no liability for any errors or omissions (including but not limited to a property's land size, floor plans and size, building age and condition). Interested parties should make their own inquiries and obtain their own legal advice.
RLA 313174
