Tranquil Creekside Setting in Redwood Park
This family home is set amongst other quality homes on large residential blocks in a beautiful creekside setting in Redwood Park. Situated on a massive 1421sqm (approximate) allotment with two separate living areas, this home provides ample space for the entire family to live and play. Beautifully renovated with timber features throughout, this home is perfect to move in straight away and enjoy.
A rare offering for such a property to be situated close to all amenities and have the private country style living, this home is not to be missed!
Features that make this home special:
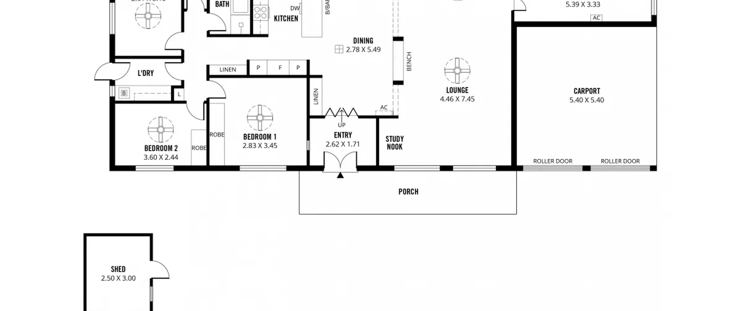
- Generous sized bedroom 1 with ceiling fan and built-in robe
- Good sized bedrooms 2 and 3, both with ceiling fans and bedroom 2 with built-in robe
- Grand entrance
- Spacious, light filled lounge with study nook and open fireplace
- Stylish kitchen with stainless steel appliances, dishwasher and breakfast bar
- Large family room with ceiling fan and air conditioner
- Dining area with air conditioner
- Beautiful polished timber floorboards
- Modern bathroom with separate toilet
- Separate laundry with ample storage space
- Ducted gas heating
- Multiple sheds
- Manicured lawn and gardens with mature gums and ornamental trees
- Rainwater tanks
- Automatic watering systems
- Gated driveway for security
- Double carport with roller doors
- Additional off-street parking
Perfectly positioned only a short stroll to delightful walking paths running alongside a creek, and only minutes away from Fairview Park Shopping Centre, a variety of sought after schools, parks and city via the O-Bahn. In close proximity to all the shopping and entertainment that Tea Tree Plaza has to offer.
For further information please contact Graeme Brown on 0455 111 791, Jayden Kirk on 0448 225 517 or 8269 7711 (office).
RLA 200591
The Vendor's Statement (Form 1), the Auction Contract and the Conditions of Sale will be available for perusal by members of the public -
(A) at our office located at 87 North East Road, Collinswood for at least 3 consecutive business days immediately preceding the auction; and
(B) at the place at which the auction is to be conducted for at least 30 minutes immediately before the auction commences.
