Renovate and Reap the Rewards
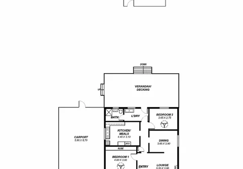
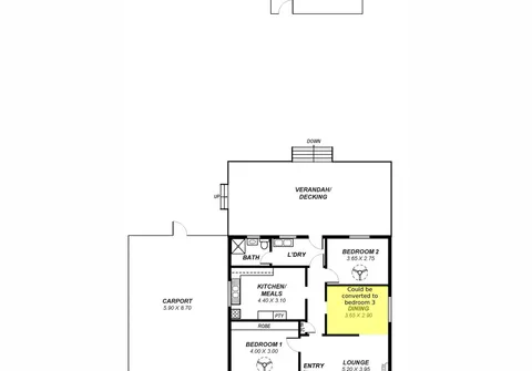
This charming home is set on a traditional sized allotment of 698sqm (approximately). This is a 'blank canvas' home that boasts a highly desirable location and offers the new owner a multitude of opportunities including renovate and make it your own, invest and reap the rewards or re-develop (subject to council consent).
Features that make this home special:
- Master bedroom with built-in robe and ceiling fan
- Spacious bedroom 2 with ceiling fan
- Easily converted 3rd bedroom, currently used as a dining room
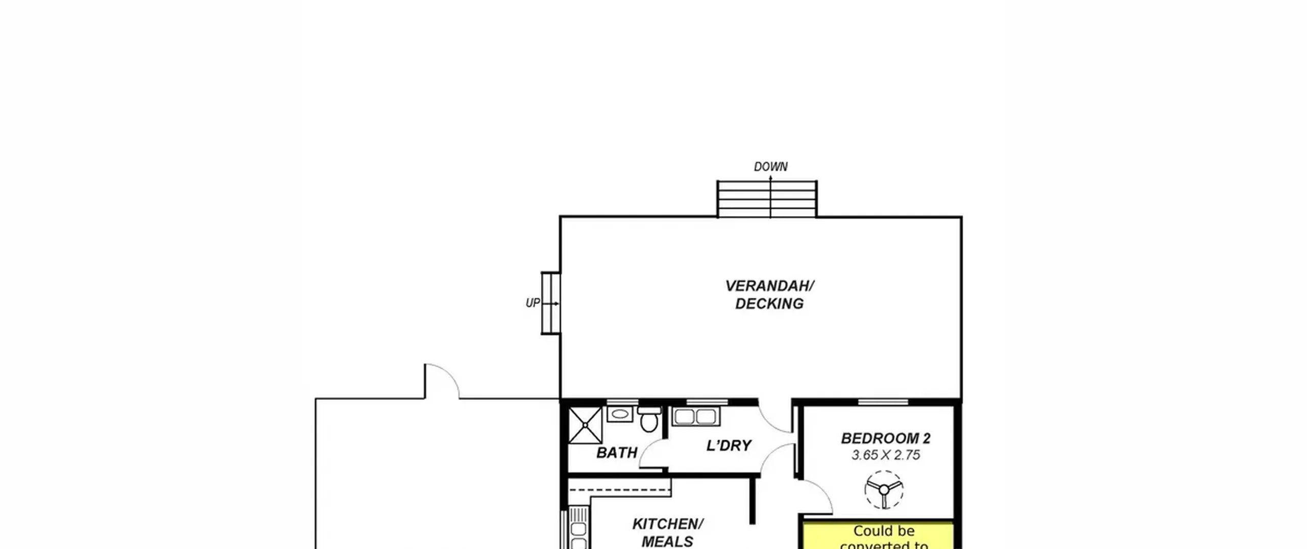
- Light filled lounge with split system air conditioner
- Functional kitchen with freestanding oven and ample bench and cupboard space
- Tidy bathroom
- Separate laundry
- Floorboards throughout
- Expansive verandah with deck, ideal for outdoor entertaining
- Great sized rear yard
- Large shed
- Double carport with automatic roller door
- 18.3m (approximate) frontage
- Currently tenanted for $310 per week until 16th July 2019
Located only minutes away from Fairview Park Shopping Centre, a variety of sought after schools, parks and city via the O-Bahn. In close proximity to all the shopping and entertainment that Tea Tree Plaza has to offer.
For further information please contact Darren Cowey on 0439 160 161 or Mark Fricker on 0413 000 845 or 8269 7711 (office).
RLA 200591
