Rare Creekside Setting in Redwood Park
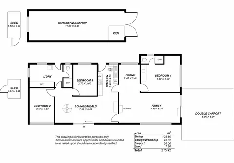
This solid brick family home is set amongst other quality homes on large residential blocks in a beautiful creekside setting in Redwood Park. Situated on a massive 1544sqm (approximate) allotment with two separate living areas, as well as two bathrooms, this home provides ample space for the entire family to live and play. Built circa-1960's with stone and timber features throughout, this home is perfect to move in straight away and enjoy, with the option to upgrade to your own taste later.
Features that make this home special:
- Large master bedroom with ensuite
- Good sized bedrooms 2 and 3
- Large, light filled lounge area with ceiling fan
- Spacious family room
- Neat and tidy kitchen with ample bench and cupboard space and split system air conditioner
- Dining area adjacent kitchen
- Main bathroom with shower
- Separate spacious laundry
- Large garage/workshop
- Fully fenced, secure rear yard with 2x garden sheds
- Double carport
- NBN connected
- 3 phase power available in laundry and shed
- Great roof insulation which has significant impact on summer cooling costs
Perfectly positioned only a short stroll to delightful walking paths running alongside a creek, and only minutes away from Fairview Park Shopping Centre, a variety of sought after schools, parks and city via the O-Bahn. In close proximity to all the shopping and entertainment that Tea Tree Plaza has to offer. Set in a quiet street, this affordable home is sure to please and inspection is a must.
For further information please contact Graeme Brown on 0455 111 791 or 8269 7711 (office).
RLA 200591
The Vendor's Statement (Form 1), the Auction Contract and the Conditions of Sale will be available for perusal by members of the public -
(A) at our office located at 434 Montague Road, Modbury North for at least 3 consecutive business days immediately preceding the auction; and
(B) at the place at which the auction is to be conducted for at least 30 minutes immediately before the auction commences.
