Value Buying in a Fantastic Location!
Calling all first home buyers, young families and investors, this one is for you! Situated in the highly sought after suburb of Redwood Park, this rejuvenated 3 bedroom home offers the new owner an abundance of space with multiple internal and external living areas.
Features that make this home special:
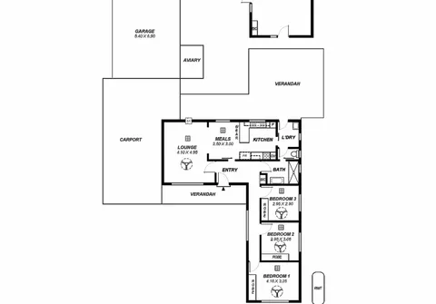
- 3 spacious bedrooms, all with built-in robes and ceiling fans
- Light filled lounge with ceiling fan and air conditioner
- Rejuvenated kitchen with gas cooktop and ample bench and cupboard space
- Casual meals area adjacent kitchen
- Stunning fully renovated bathroom with separate toilet
- Separate laundry
- Ducted gas heating throughout
- Expansive undercover outdoor entertaining area
- Large rumpus/games room with built-in cupboards, desk and reverse cycle air conditioner
- 3kw solar system with 12 panels
- Brand new gas hot water system
- Garden shed and aviary
- Low maintenance, fully fenced front and rear yard
- Double garage
- Extra wide double length carport
- 724.6sqm (approximate) allotment with an 18.29m (approximate) frontage
Located only minutes away from Fairview Park Shopping Centre, a variety of sought after schools, parks and city via the O-Bahn. In close proximity to all the shopping and entertainment that Tea Tree Plaza has to offer. Set in a quiet street, this affordable home is sure to please!
For further information please contact Darren Cowey on 0439 160 161 or 8269 7711 (office).
RLA 200591
