Contemporary Townhouse Living
Set in a small group of 4 in the Prospect Primary and Adelaide High School zone with cosmopolitan Prospect Road and North Adelaide precinct only a short stroll away the location doesn't get much better than this! Offering 'No Body Corporate Fees', an abundance of natural light due to the high lofty ceilings complimented with a neutral colour scheme throughout and a flexible floorplan, this home is sure to impress professionals, downsizers, young couples and the astute investor. Situated on 250sqm (approximately) of land and boasting large proportions to all rooms with a rare offering of 2 car spaces, townhouses of this design seldom come to the market. Be quick for this one!
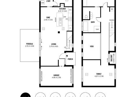
Upper level comprising of:
- Large master bedroom with built-in robe and direct access to bathroom
- Spacious second bedroom or alternatively could be converted to a family room or teenage retreat
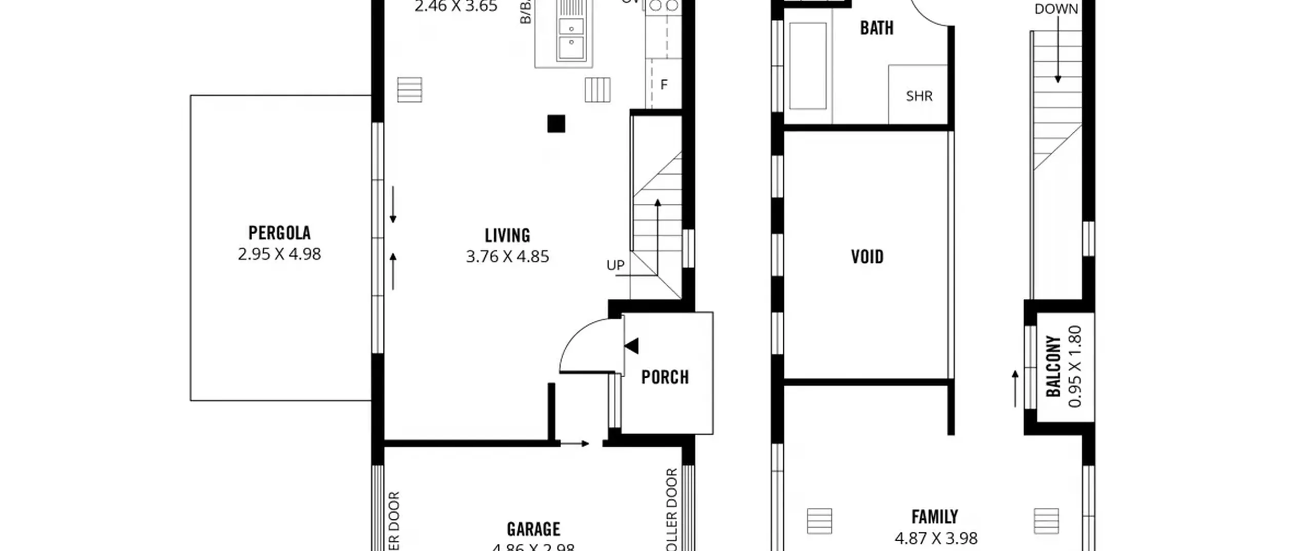
- Two-way main bathroom
- Balcony
- Ducted reverse cycle air conditioning
- High ceilings and downlights throughout
Lower level comprising of:
- Good sized bedroom 3 serviced by the second bathroom and/or study
- Large open plan dining and living area overlooking the private rear courtyard
- Double height loft ceilings provide an abundance of space and natural light giving a very modern and contemporary feel
- Stylish kitchen with gas cooktop, granite benchtops, island bench and breakfast bar
- Sparkling second bathroom with porcelain floor-to-ceiling tiles
- Separate laundry
- Ducted reverse cycle air conditioning
- Pergola, perfect for outdoor entertaining
- Fully fenced rear yard
- Single garage with automatic roller door and drive through access
- Additional off-street parking for visitors
- Solar panels for energy efficiency
- NBN connected
Within easy walking distance to all of the shopping and entertainment options that Prospect Road, North Park Shopping Complex and Sefton Plaza have to offer and ample public transport options nearby. Located close to a variety of quality schools such as Blackfriars Primary School and Nailsworth Primary and zoned for the Adelaide High School and the new Adelaide Botanic High School. All of this and only 4kms (approximately) to vibrant North Adelaide and 6kms (approximately) to the CBD.
For further information please contact Graeme Brown on 0455 111 791, Jayden Kirk on 0448 225 517 or 8269 7711 (office).
RLA 200591
