Stunning Three Bedroom Townhouse
This fantastic home provides a great opportunity for those seeking a low maintenance lifestyle whilst also delivering all of the benefits of a city fringe location. Set within a private and secure gated community this superbly presented townhouse is close to all the action on Prospect Road providing a lifestyle hard to match. Boasting great proportions to all rooms with a neutral colour scheme throughout and the bonus of an impressive outdoor entertaining area. If you're a first home buyer looking for an entry level home in the popular area of Prospect or someone looking for a quality low maintenance property with the option to live in and rent out, your search stops here!
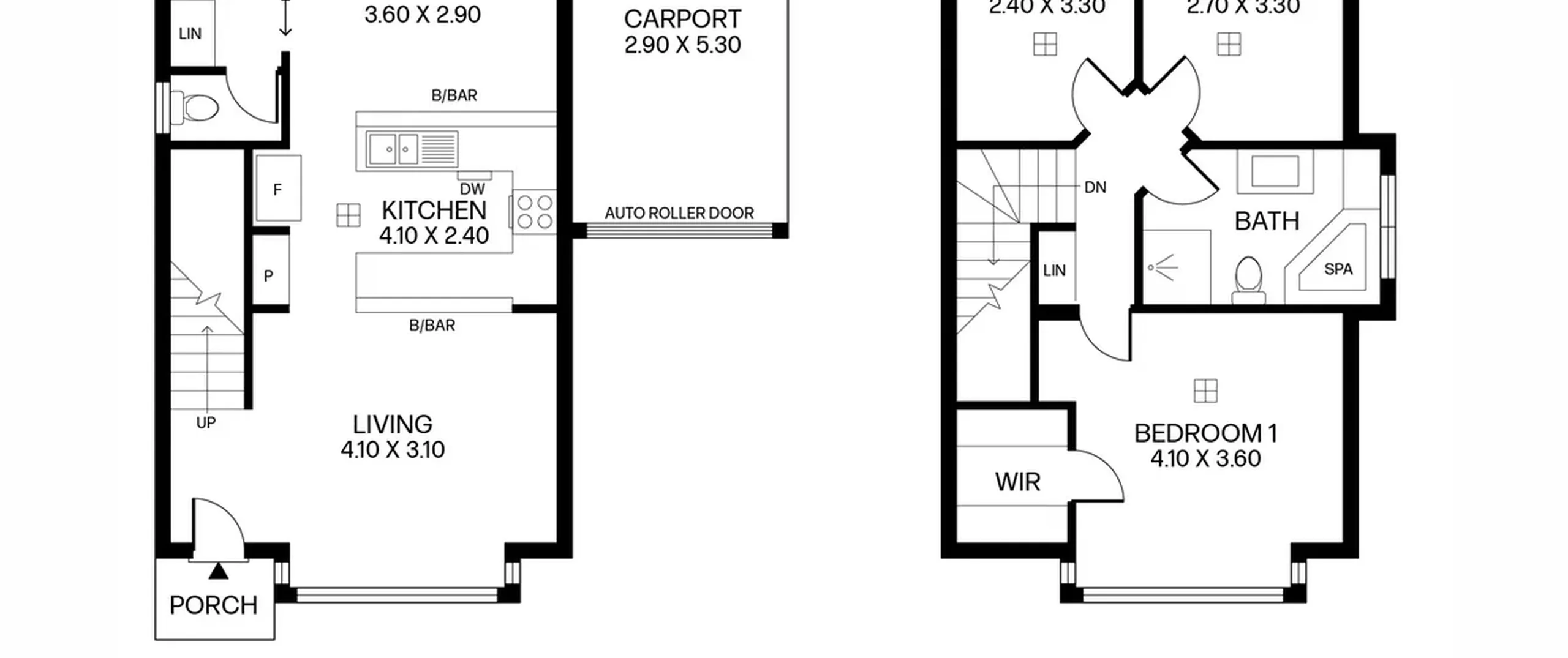
Upper level comprising of:
- Spacious bedroom 1 with large walk-in robe
- Good sized bedrooms 2 and 3
- Updated main bathroom with spa bath, separate shower and floor to ceiling tiles
- Ducted reverse cycle air conditioning throughout
Lower level comprising of:
- Light filled living room overlooking the beautiful maintained gardens
- Meals area adjacent kitchen with double doors opening to the outdoor entertaining area
- Modern kitchen with breakfast bar, dishwasher, gas cooktop and ample cupboard and bench space
- Separate laundry with external access and additional separate toilet
- Ducted reverse cycle air conditioning throughout
- Impressive outdoor entertaining area with ceiling fan
- Fully fenced, low maintenance yard
- Single carport with automatic roller door and space for an extra vehicle
- Alarm system
Reap the rewards of this great location within close proximity to cosmopolitan Prospect Road with all the cafes, restaurants, Palace Nova Cinema and within walking distance to Northpark Shopping Centre. Several public transport options including bus stops along Churchill Road as well as 2 train stations nearby which can take you into the heart of the City and North Adelaide within minutes! A variety of quality schools are also nearby with zoning for the Adelaide Botanic and Adelaide High school zone.
Don't miss this opportunity!
For further information please contact Graeme Brown on 0455 111 791, Andrew Tamburrino on 0447 888 177 or 8269 7711 (office).
RLA 200591
