Prime Opportunity in Prestigious Location
This charming double brick home is situated on a maintainable 327sqm (approximate) block, providing a rare opportunity not to be missed. Located in a tree-lined street in the prestigious suburb of Prospect, the commanding facade and gated front yard sets the tone for this humble abode. Original character features are on offer throughout plus there’s endless potential to renovate and add your personal style to the property.
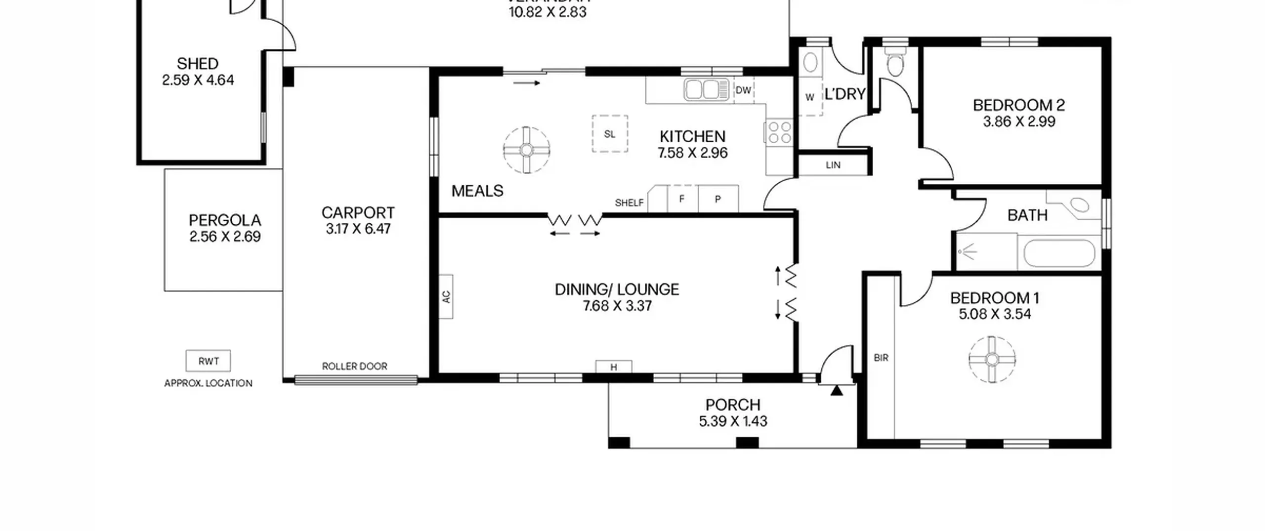
The flexible floor plan comprises of two bedrooms, one bathroom, a spacious dining and lounge room, plus a well-equipped kitchen with meals area. Adding to the modest layout is an attached carport with roller door, secure off-street parking in the gated driveway and garden shed with additional toilet for convenience. You will love to host guests on the rear verandah which offers ample space for entertaining throughout the warmer months!
A rare, low maintenance offering situated close to all amenities on Prospect Road, this home is perfect for downsizers who live in the local area, first home buyers and professional couples looking to enter the Prospect market at an affordable entry point for a Torrens Titled home!
Features that make this home special:
- Large bedroom one complete with built-in robe and ceiling fan
- Good sized bedroom two
- Spacious separate lounge/dining room with split system air conditioner and heater, complete with bi-fold doors opening to the kitchen and hallway
- Charming kitchen with dishwasher, and complete with ample cupboard and bench space
- Meals area adjacent to the kitchen with ceiling fan and sliding door access to the verandah
- Neat and tidy main bathroom with bath and separate shower
- Separate toilet
- Practical laundry with external access
- Expansive verandah for undercover entertaining
- Shed with toilet for added convenience
- 2x Rainwater tanks
- Single carport with roller door
- Fully fenced low-maintenance front courtyard with gated driveway for additional off-street parking
Reap the rewards of the great location within walking distance to the Palace Nova Cinema, cafes & restaurants along Prospect Road, as well as North Park & Sefton Plaza Shopping Centre. A short drive to the Churchill Road Shopping complex. Ideally located in close proximity to public transport that takes you into North Adelaide & Adelaide Oval.
For further information please contact Graeme Brown on 0455 111 791, Ben Krieg on 0447 888 177 or 8269 7711 (office).
All information provided has been obtained from sources we believe to be accurate, however, we cannot provide any guarantee and we accept no liability for any errors or omissions (including but not limited to a property's land size, floor plans and size, building age and condition). Interested parties should make their own inquiries and obtain their own legal advice.
RLA 313174
