Perfection awaits you in Prospect!
Classic features meet serene aesthetics in this beautifully presented family home, boasting a sense of your own private retreat without the hustle and bustle that most city fringe locations possess. Privately nestled upon beautifully landscaped, Japanese inspired gardens on approximately 876sqm of prime land, this meticulously maintained property is located in the prestigious suburb of Prospect.
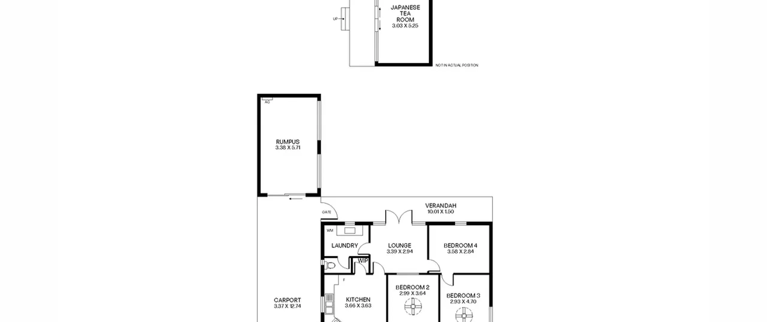
Upon arrival, you are greeted by the very neat and tidy street frontage. Moving inside, there is a separate living room upon entry that will accommodate weekend family movie nights with ease. Following the hallway, you will move into the spacious kitchen that has been updated with absolute functionality in mind. Offering sweeping benchtops, quality stainless steel appliances and plenty of cupboard space, the home cook of the family is sure to be impressed!
An additional lounge area is offered at the rear of the home, which is light filled and overlooks the rear entertaining area. Completing the internal layout are three spacious bedrooms with ceiling fans, a separate study, well-appointed main bathroom and a practical laundry.
As grand as the internal space is, the outdoor area is even more impressive with an expansive verandah entertaining area, external rumpus room and Japanese tea room, providing multiple spaces to choose from for entertaining. A stunningly landscaped Japanese inspired garden stands proud in the center of the yard, featuring beautiful garden ornaments and timber fretwork inviting you into the Japanese tea room.
This is the property truly has something for everyone!
Features that make this home special:
- Three spacious bedrooms all complete with ceiling fans
- Bright living room at the front of the home offering heater with feature mantel piece and gorgeous polished timber flooring
- Large neat and tidy kitchen with stainless steel oven and gas cooktop, generous walk-in pantry and plenty of bench and cupboard space
- Light-filled separate lounge with French doors opening to the verandah
- Separate study
- Sparkling main bathroom with separate bath and shower
- Separate laundry with toilet
- Spacious detached rumpus room with air conditioner
- Low-maintenance backyard with paved verandah and artificial grass
- Stunning Japanese garden leading you to the tranquil Japanese tea room with ceiling fan, creating a peaceful spot to relax
- 2x garden sheds
- Low-maintenance facade to welcome you home with stunning water feature
- Tandem carport with space for three cars and roller door for added security
Reap the rewards of this great location with a short stroll to Prospect Road and a quick trip to the coveted Churchill Centre, as well as being ideally located in close proximity to public transport options which take you into North Adelaide and Adelaide Oval Precinct in minutes. Additionally located within the sought-after Adelaide High School and new Botanic High School Zone.
For further information please contact Graeme Brown on 0455 111 791, Ben Krieg on 0447 888 177 or 8269 7711 (office).
All information provided has been obtained from sources we believe to be accurate, however, we cannot provide any guarantee and we accept no liability for any errors or omissions (including but not limited to a property's land size, floor plans and size, building age and condition). Interested parties should make their own inquiries and obtain their own legal advice.
RLA 313174
