Potential, Position and Opportunity on 1,067sqm of Prime Land!
If you're looking for a substantial land holding to build your dream home, looking to renovate and add value to this Sandstone Fronted Bungalow, or subdivide and develop (all subject to planning consents), your search stops here. The location doesn’t get much better, superbly positioned in a quiet tree lined street in the Fitzroy end of Prospect amongst older character homes and high quality developments. With a flexible floorplan that can be adapted to suit your needs, this opportunity is sure to impress a wide range of buyers.
Boasting a rare wide frontage of 20m (approximately) with no easements, buyers will also be excited by the possibilities of the site, presenting 1,067sqm (approximately) of prime land with dimensions of 20m x 52m (approximate), this could well be the site you have been waiting for to build that dream home. Alternatively take inspiration from the nearby, high-quality developments to undertake your own project and capitalise on the strong demand in the area (subject to planning consents).
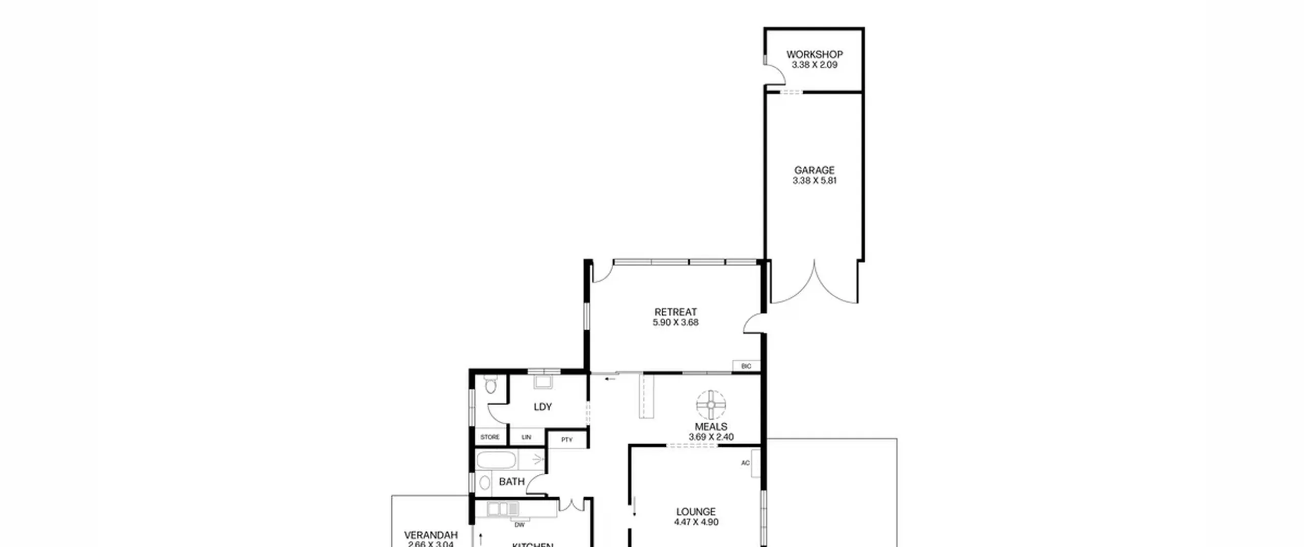
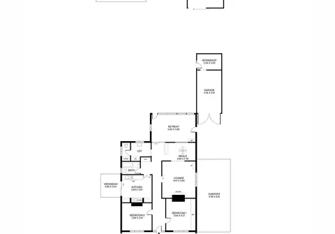
This property includes two bedrooms and ample living space, a fully fenced rear yard, a versatile and generous entertainment room, and secure, undercover parking as well as a large driveway to accommodate for additional off-street parking or the perfect place to store your boat, caravan, or trailer.
Features that make this home special:
- Large main bedroom with built in robes
- Good sized second bedroom
- Large, light filled lounge room with split system air conditioning and heater for year-round comfort
- Meals area adjoining the lounge with a ceiling fan
- Original kitchen with ample bench and cupboard space
- Neat and tidy bathroom with separate bath and shower + separate toilet
- Large separate laundry with linen storage
- Light filled retreat with built-in cupboards
- Expansive rear yard
- Detached entertainment room
- Garden shed
- Garage with adjoining workshop
- Double length carport with drive through access to the garage
Note: Certificate confirming the pre-existing pool has been decommissioned will be provided upon settlement.
A delineated area around the decommissioned pool will be a non-access area for your safety at all open inspections, inspection is at your own risk.
Reap the rewards of this great location with a short stroll to Prospect Road and a quick trip to the coveted Churchill Centre, as well as being ideally located in close proximity to public transport options which take you into North Adelaide and Adelaide Oval Precinct in minutes. Additionally located within the sought-after Adelaide High School and new Botanic High School Zone.
For further information please contact Graeme Brown on 0455 111 791, Ben Krieg on 0447 888 177 or 8269 7711 (office).
All information provided has been obtained from sources we believe to be accurate, however, we cannot provide any guarantee and we accept no liability for any errors or omissions (including but not limited to a property's land size, floor plans and size, building age and condition). Interested parties should make their own inquiries and obtain their own legal advice.
RLA 313174
