Nest Or Invest In This Delightful Unit In A Small Group Of 3
We are proud to present to the market this stylish and charming unit situated in a quiet single storey group of 3 with the added bonus of street frontage opposite a reserve. This affordable, double brick unit offers all the benefits one would expect in a larger home with formal entry, good sized separate living, formal dining room and 2 large bedrooms complete with built-in robes, totalling an impressive 105sqm (approximate) of internal/external living space. If you are looking to acquire your first home, downsize or purchase an investment property to reap the rewards of this great location, make sure you make the time to view, you won't be disappointed!
Inside this modern unit, features beautiful polished pine timber floorboards throughout, light filled living spaces and neutral décor, whilst offering a low maintenance ambience creating the ultimate lock up and leave lifestyle.
Features that make this home special:
- Very affordable Body Corporate fees (approximately $150 per quarter)
- Attractive street frontage to Braund Road with a tranquil park outlook
- Within a few minutes’ walk to enjoy the Prospect Road lifestyle with an abundance of cafes, eateries and the Palace Nova Cinema
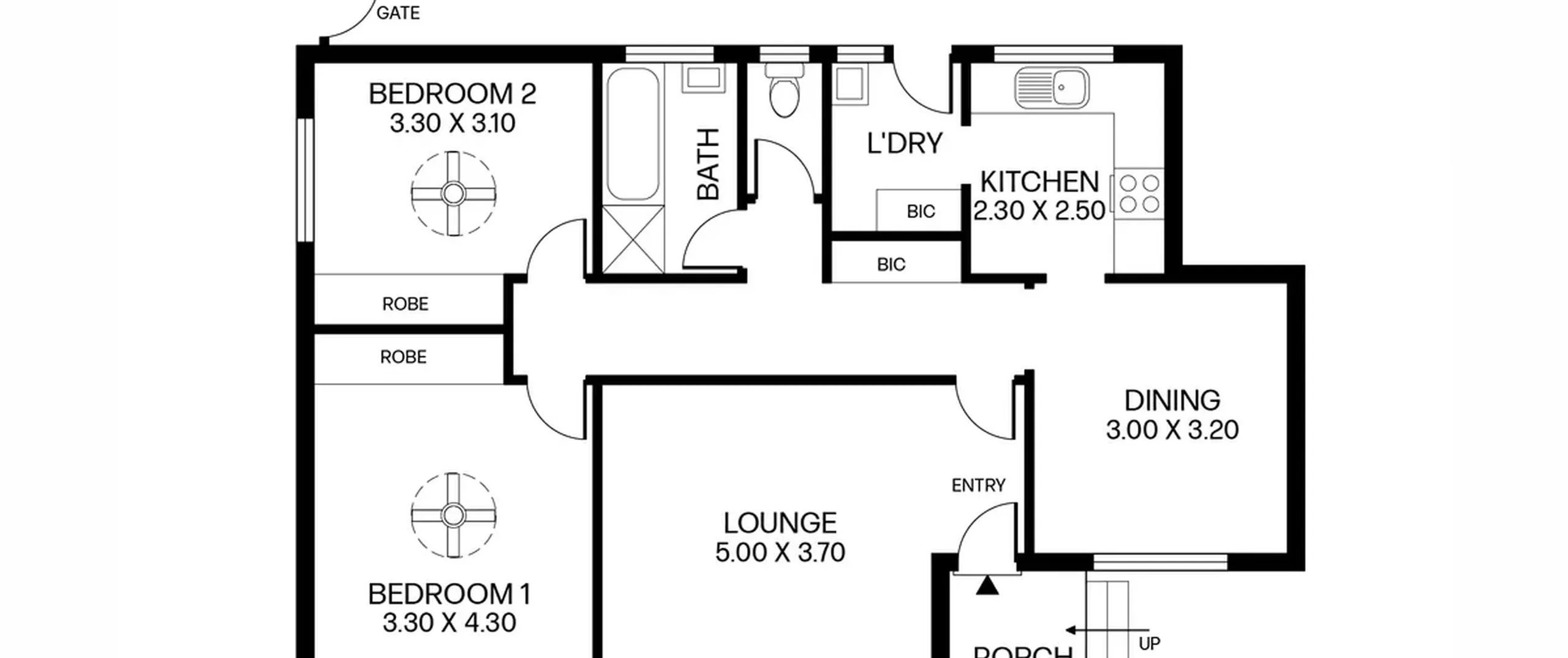
- Generous sized master bedroom complete with built-in robe, ceiling fan and split system air conditioning
- Bedroom 2 of good size with built-in robe and ceiling fan
- Delightful living room with polished timber floorboards and split system air conditioning
- Light filled dining area
- Modern kitchen with generous bench and storage space
- Vintage 1970s bathroom complete with separate bath and shower
- Separate toilet for convenience
- Separate laundry with storage and access to rear
- Additional linen cupboard
- Fully fenced, secure rear courtyard
- Single carport with roller door and option to use as undercover entertaining area
- Plenty of off street visitor parking available
- Updated 1975 double brick build
Reap the rewards of this great location with a short stroll that will find you in the heart of all the action on Prospect Road, where you can find numerous eateries, cafes and small boutique shops. In close proximity to the Churchill Centre, Sefton Plaza and North Park Shopping Centre, as well as being ideally located in close to public transport options which take you into North Adelaide and Adelaide Oval Precinct in minutes. Nearby a number of quality public and private schools including Rosary Primary School just a minutes’ walk away and zoned for Adelaide High School and Blackfriars Priory. All of this and just 6kms (approximately) to the CBD.
Be quick for this one!
For further information please contact Graeme Brown on 0455 111 791, Andrew Tamburrino on 0447888177 or 8269 7711 (office).
RLA 200591
The Vendor's Statement (Form 1), the Auction Contract and the Conditions of Sale will be available for perusal by members of the public -
(A) at our office located at 87 North East Road, Collinswood for at least 3 consecutive business days immediately preceding the auction; and
(B) at the place at which the auction is to be conducted for at least 30 minutes immediately before the auction commences.
