Offers Close Tuesday 16th At 5pm - Renovated 1925 Bungalow On 822sqm Land
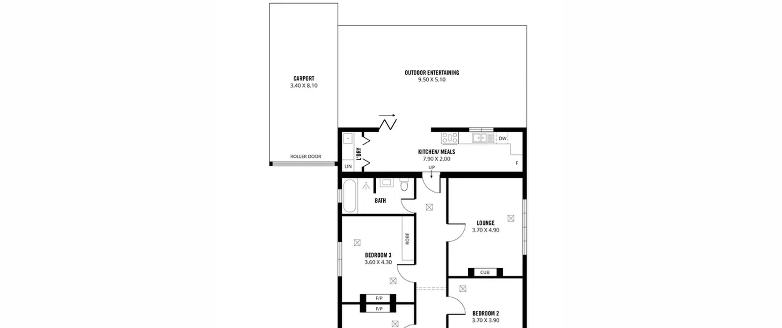
This stunning 1925 built bungalow showcases quality finishes coupled with modern elegance and will appeal to the most astute buyer. Beautifully renovated on an 822sqm (approximate) allotment, it is packed with character features whilst also exuding a modern contemporary feel with its clean lines and neutral decor. Offering a flexible floor plan with 4 large rooms in the original part of the house, wide central hallway and boasting beautiful character features throughout such as polished timber floors, fireplaces, ornate ceilings and exposed brick feature walls. No expense has been spared with the addition of a stunning renovated bathroom and 50sqm (approximate) paved pergola perfect for outdoor entertaining and offers seamless flow from the internal living areas to the huge backyard which is the perfect place for the kids to play. Offering a lifestyle that is hard to match with many great amenities close by, and is sure to impress families, first home buyers looking for a great entry point into this sought after suburb and investors looking for a high performing capital growth property. Inspection is a must!
Features that make this home special:
- Large bedroom 1 with fireplace
- Large bedroom 2 and 3; bedroom 3 with fireplace and built-in robe
- Polished timber floors throughout with neutral colour scheme and ornate character feature
- Light-filled spacious formal lounge with exposed brick feature wall
- Meals area adjacent to kitchen with cafe doors opening up to the outdoor entertaining area
- Modern kitchen with ample cupboard and bench space and stainless steel appliances including a 900mm gas oven and dishwasher
- Contemporary main bathroom newly renovated in 2018 with bath and separate shower, underfloor heating, floor to ceiling tiles and quality tapware
- Compact European laundry
- Ducted air conditioning and gas heating throughout
- Huge undercover outdoor entertaining area with cafe blinds
- Fully fenced yard with manicured established gardens, vegetable patch and fruit trees including Apples, Fig, Oranges, Pomegranate, Lemon and Lime
- Fantastic sized grass area which is perfect for the kids and pets to play
- Secure double length carport with roller door. Drive through access to a large 6x6 workshop or garage which has water connection and power.
- Network and Antenna Ports in lounge and all bedrooms
Reap the rewards of this great location with a short stroll to Prospect Road Cafe and Restaurant strip and a quick trip to the coveted Churchill Centre, as well as being ideally located in close proximity to public transport options which take you into North Adelaide and Adelaide Oval Precinct in minutes. Additionally located within the sought after Adelaide High School, Blackfriars Priory School and new Botanic High School Zone.
For further information please contact Graeme Brown on 0455 111 791, Jayden Kirk on 0448 225 517 or 8269 7711 (office).
RLA 200591
