Renovators Delight
Set on a large 651sqm (approximate) allotment with a 15.2m (approximate) frontage in the popular high growth area of Prospect, this 1926 built bungalow offers the new owner a multitude of options to explore and turn into Sweet Home Alabama!
Boasting an array of character features such as high ornate ceilings, leadlight windows, polished floorboards and feature fireplaces this is the perfect property to make your mark in Prospect as an affordable entry level.
Renovate and move in and enjoy through a simple cosmetic update or alternatively rent out and reap the long term capital growth rewards or redevelop (subject to council consent). Astute buyers will surely be impressed with the potential to add value.
Features that make this home special:
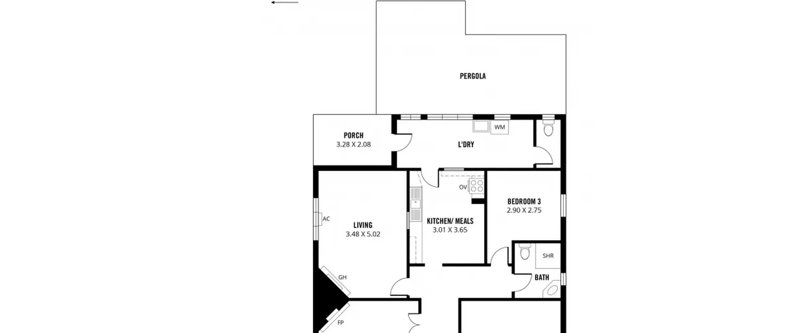
- 3 good sized bedrooms with coffered ceilings and bedroom 1 with built-in robe
- Large separate living with gas heater and air conditioning and beautiful feature dome
- Functional kitchen and meals area with gas cooking and skylight
- Original bathroom with separate shower
- Large light-filled laundry area with additional toilet
- Shade cloth pergola
- Fully fenced front and rear yards with established gardens
- Off street parking with side access to rear shed
- Secure shed with room for 1 x car
- Open store space backing on to shed
Positioned in a great location within walking distance to the Churchill Road Shopping complex and North Park Plaza. A short drive to Palace Nova Cinema, Cafes and Restaurants along Prospect Road and ideally located in close proximity to public transport options which take you into North Adelaide and Adelaide Oval Precinct in minutes.
For further information please contact Graeme Brown on 0455 111 791 or Jayden Kirk on 0448 225 517 or 8269 7711 (office)
RLA 200591
The Vendor's Statement (Form 1), the Auction Contract and the Conditions of Sale will be available for perusal by members of the public -
(A) at our office located at 87 North East Road, Collinswood for at least 3 consecutive business days immediately preceding the auction; and
(B) at the place at which the auction is to be conducted for at least 30 minutes immediately before the auction commences.
