Contemporary Courtyard Living
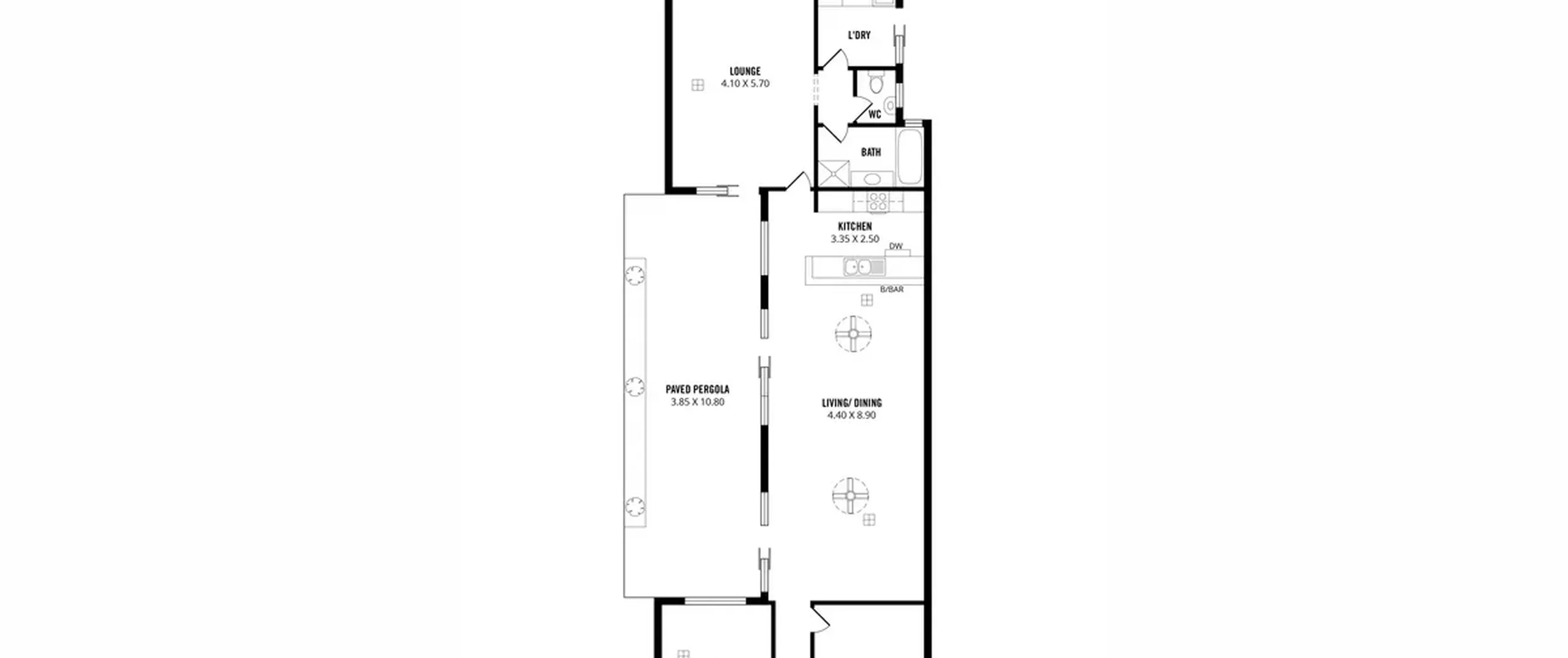
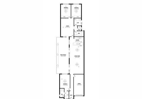
This architecturally designed Torrens Titled courtyard home is located in the tightly held suburb of Prospect. Thoughtfully designed with 2.7m (approximate) ceilings, 2 large living areas, 3 good sized bedrooms all with built-in robes, and quality appliances and fittings throughout, there is nothing to do but simply move in, relax and enjoy this fabulous property! Situated on a low maintenance 373sqm block (approximate) and with its city fringe location, this is a home that will truly impress both the young professional, downsizers, and investors looking for a solid investment.
Features that make this home special:
- Large master bedroom with ceiling fan, walk-in robe and ensuite
- Generous sized bedrooms 2 and 3, both with built-in robes and ceiling fan
- Single garage with direct internal entry and automatic roller door
- Spacious open plan living/dining area with ceiling fans
- Formal lounge room or teenage retreat
- Modern kitchen with gas cooktop, dishwasher and breakfast bar
- Main bathroom with separate bath and shower + separate toilet
- Separate laundry with ample storage space
- Ducted reverse cycle air conditioning throughout
- Large paved pergola, perfect for outdoor entertaining which provides ample light throughout the double doors to the living area
- Low maintenance rear yard with garden shed, irrigation system and rainwater tank plumbed to toilet
- Luxaflex roller blinds to all windows
- Alarm system for security
Reap the rewards of this great location within walking distance to the Churchill Road Shopping complex. A short drive to Palace Nova Cinema, Cafes and Restaurants along Prospect road and Ideally located in close proximity to public transport options which take you into North Adelaide and Adelaide Oval Precinct in minutes. Additionally located within the sought after Adelaide High School and new Botanic High School Zone.
Don't hesitate and risk missing out!
For further information please contact Graeme Brown on 0455 111 791 or Jayden Kirk on 0448 225 517 or 8269 7711 (office)
RLA 200591
