Character Bungalow offering Position and Potential!
Perfectly positioned in the tightly held suburb of Prospect amongst other quality period homes, this character stone fronted Bungalow set on approximately 652sqm will appeal to the most astute buyer. Well maintained and featuring its original charm, the floorplan layout offers huge potential. Ripe for renovation, the new owner can add serious value with a simple cosmetic face-lift or extension (Subject to Council Consent). Equally this property offers the option of building your dream home (Subject to Council Consent) and making use of the North facing rear and wide frontage.
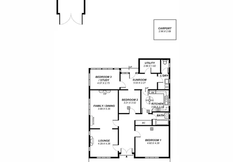
Features that make this home special:
- Double sized master bedroom
- Good sized bedrooms 2 and 3
- Light filled lounge
- Large family and dining room with feature fireplace and split system air conditioner
- Original kitchen with ample bench and cupboard space and ceiling fan
- Neat and tidy bathroom + separate toilet
- Separate laundry
- Sunroom and utility room
- Ornate ceilings, leadlight windows and feature fretwork
- Expansive rear yard
- Garden shed
- Single garage
Reap the rewards of this great location with only a short walk to cosmopolitan Prospect Road offering a variety of shopping, restaurants, cafes and the new palace nova cinema. Ideally located in close proximity to public transport options which take you into North Adelaide in minutes, Adelaide Oval and provides a lifestyle hard to match. Also nearby are a variety of schools such as Blackfriars Priory School and within the sought after Adelaide High School and new Botanic High School Zone.
Don’t miss this opportunity!
For further information please contact Graeme Brown on 0455 111 791 or Jayden Kirk on 0448 225 517 or 8269 7711 (office).
RLA 200591
The Vendor's Statement (Form 1), the Auction Contract and the Conditions of Sale will be available for perusal by members of the public -
(A) at our office located at 87 North East Road, Collinswood for at least 3 consecutive business days immediately preceding the auction; and
(B) at the place at which the auction is to be conducted for at least 30 minutes immediately before the auction commences.
