Character Cottage Offering Location and Endless Potential!
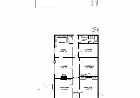
Perfectly positioned in the tightly held suburb of Prospect amongst other quality period homes, this symmetrical character cottage built in 1900 will appeal to the most astute buyer. Well maintained and featuring its original charm, the floorplan layout boasts 6 generously proportioned main rooms, and will appeal to a multitude of buyers looking to move in and enjoy, rent out or update over time to add serious value.
Oozing historic charm with a large central hallway with arch and character ceilings, cornicing, fireplaces and polished timber floorboards, this home is sure to impress. Set on 591sqm (approximately) in a prime location adjacent Fitzroy and close to all the shopping, restaurants and cafes on Prospect Road, this home is a blank canvas ready for you to create your own mark.
Features that make this home special:
- Spacious bedroom 1 with dual built-in robes
- Large bedrooms 2 and 3, bedroom 3 with fireplace and both with built-in robes
- Generous sized bedroom 4 or study
- Spacious, light filled lounge with heater and split system air conditioner
- Modern timber kitchen with ample bench and cupboard space
- Spacious eat-in dining area within kitchen
- Bathroom with separate bath and shower + separate toilet
- Separate laundry
- Side access to the rear yard with secure fencing, fruit trees and large shed
Within easy walking distance to all of the shopping and entertainment options that North Park Shopping Complex, Sefton Plaza and Prospect Road have to offer and ample public transport options nearby. Located close to a variety of quality schools such as Blackfriars Priory School and Nailsworth Primary and zoned for the Adelaide High School and the new Adelaide Botanic High School. All of this and only 3kms (approximately) to vibrant North Adelaide and 5kms (approximately) to the CBD.
Inspection is a must!
For further information please contact Graeme Brown on 0455 111 791 or 8269 7711 (office).
RLA 200591
The Vendor's Statement (Form 1), the Auction Contract and the Conditions of Sale will be available for perusal by members of the public -
(A) at our office located at 434 Montague Road, Modbury North for at least 3 consecutive business days immediately preceding the auction; and
(B) at the place at which the auction is to be conducted for at least 30 minutes immediately before the auction commences.
