Charming Bungalow on Valuable Corner Allotment
This charming home is set in a lovely tree lined street on a generous corner allotment of 716sqm (approximate). Oozing historic charm with ceiling roses, leadlight windows, polished timber floorboards, picture rails and timber fretwork, this home is sure to impress.
Well maintained the home is suitable to move straight into, alternatively make use of the exciting 'blank canvas' it provides and fully explore ways to create a Masterpiece. Investors will also see the potential to secure a quality tenant and take advantage of the area's excellent capital growth.
Features that make this home special:
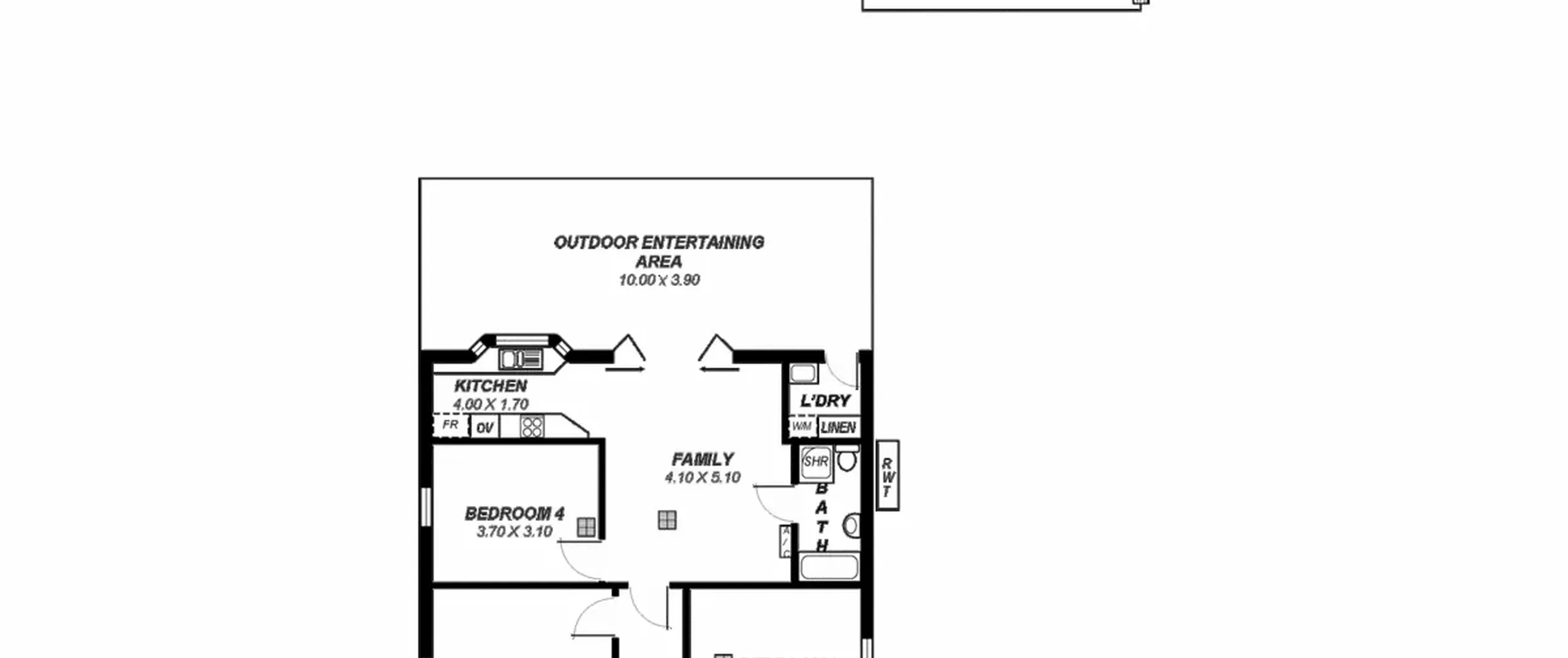
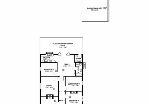
- 4 double sized bedrooms
- Bedroom 1 with feature fireplace and built-in robe
- Bedroom 2 with feature fireplace, could be used as a formal lounge
- Large formal dining room with feature fireplace
- Light filled family room with split system air conditioner
- Neat and tidy kitchen overlooking the manicure rear garden
- Bathroom with separate bath and shower
- Separate laundry with linen cupboard
- Ducted evaporative cooling throughout
- French doors open up to the expansive outdoor entertaining area
- Low maintenance, secure, front and rear yard with automatic irrigation system
- Large tool shed with 3 phase power
- Rainwater tank
- Double carport with roller door
Within easy walking distance to all of the shopping and entertainment options that North Park Shopping Complex and Sefton Plaza and Prospect Road have to offer. Located close to a variety of quality schools and ample public transport options. All of this and only 5.7kms (approximately) from vibrant North Adelaide and the CBD.
Inspection is a must!
For further information please contact Graeme Brown on 0455 111 791 or 8269 7711 (office).
RLA 200591
The Vendor's Statement (Form 1), the Auction Contract and the Conditions of Sale will be available for perusal by members of the public -
(A) at our office located at 434 Montague Road, Modbury North for at least 3 consecutive business days immediately preceding the auction; and
(B) at the place at which the auction is to be conducted for at least 30 minutes immediately before the auction commences.
