Corner Allotment Family Entertainer!
Discover space, comfort and style in this beautiful family home set on a rare original-sized corner allotment in Pooraka. It doesn’t get any better than this well-loved home that is bursting with potential offering you the chance to modernise and revitalise or enjoy as is.
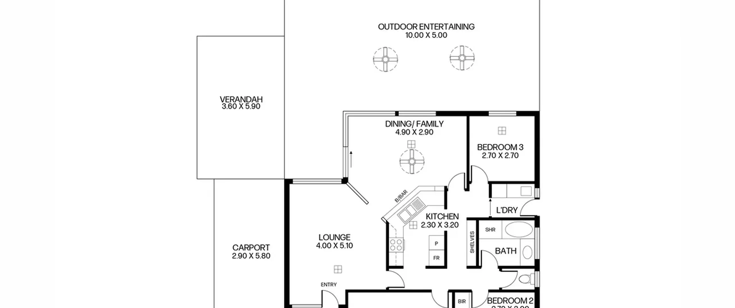
Inside, there are three good-sized bedrooms, a central main bathroom and a charming lounge room upon entry. A separate open plan dining and family room overlooks the backyard while an immaculate kitchen is perfectly positioned and well-equipped to suit the cook of the home.
Outside, a large outdoor entertaining area awaits and overlooks the well-kept yard with an abundance of greenery. The layout is complete with a carport accessed by an automatic roller door, an additional verandah and a garage for extra parking or storage.
This 733sqm (approximate) allotment represents genuine value and offers the new owner a multitude of options including: live in and enjoy, renovate and add your own personal touches, rent out and reap the rewards or redevelop (subject to planning consent).
Features that make this home special:
- Large main bedroom with ceiling fan and built-in robe
- Bedrooms 2 and 3 both of good size; bedroom 2 with built-in robe and ceiling fan
- Inviting lounge room to welcome you home, adjoining to the dining room complete with ceiling fan
- Well equipped kitchen with stainless steel oven, gas cooktop, pantry, ample cupboard space and servery to the dining room
- Neat and tidy bathroom with separate bath and shower
- Separate toilet for added convenience
- Separate laundry with external access
- Ducted reverse cycle air conditioning
- Expansive undercover outdoor entertaining area with two ceiling fans, providing a spot for year-round entertaining
- Generous backyard surrounded by beautifully landscaped gardens
- Rainwater tank
- Solar electrical system
- Detached garage with panel door and external access
- Single carport with automatic roller door and drive through access to the garage
- Fully gated front gardens with long driveway for additional secure parking
- Generous corner block
Located in close proximity to all amenities including parks and reserves and just minutes away from public transport options and a variety of schools including Roma Mitchell Secondary College, Pooraka Primary School and St Pauls College. Only a short drive to Ingle Farm Shopping Centre, Mawson Lakes Shops and all the shopping and entertainment that Tea Tree Plaza has to offer. All this and less than 12km (approximately) to the Adelaide CBD.
For further information please contact Fadi Oudih on 0455 999 007, Paul Leombruno on 0439 160 161 or 8269 7711 (office).
All information provided has been obtained from sources we believe to be accurate, however, we cannot provide any guarantee and we accept no liability for any errors or omissions (including but not limited to a property's land size, floor plans and size, building age and condition). Interested parties should make their own inquiries and obtain their own legal advice.
The Vendor's Statement (Form 1), the Auction Contract and the Conditions of Sale will be available for perusal by members of the public - (A) at our office located at 78-80 North East Road, Walkerville for at least 3 consecutive business days immediately preceding the auction; and (B) at the place at which the auction is to be conducted for at least 30 minutes immediately before the auction commences.
RLA 313174
